Wszystkie stacje II linii metra wykonywane są w głębokich wykopach. Fakt ten wraz ze skomplikowanymi warunkami geologiczno-inżynierskimi oraz hydrogeologicznymi i dużymi gabarytami obiektów podziemnych stawia przed projektantami i wykonawcami trudne wyzwania.
Odcinek centralny II linii metra w Warszawie przebiega w terenie silnie zurbanizowanym, w zwartej zabudowie miejskiej, pod ruchliwymi ulicami (fot. 1). W 2007 r. sygnalizowano już, że najtrudniejsze do zrealizowania będą [1]:
– przejście pod I linią metra w rejonie stacji Świętokrzyska;
– wybudowanie wspólnej stacji na skrzyżowaniu I i II linii;
– połączenie I i II linii łącznicą usytuowaną na południowo-zachodnim narożniku ulic Świętokrzyskiej i Marszałkowskiej;
– budowa najgłębiej położonej stacji Nowy Świat pod skrzyżowaniem ulic Świętokrzyskiej i Nowy Świat oraz stacji Powiśle;
– przejście tunelami metra pod Skarpą Warszawską i budynkami w rejonie ulicy Bartoszewicza być może posadowionymi na palach;
– przejście tunelami metra u podnóża Skarpy Warszawskiej, gdzie zalega warstwa gruntów słabych o dużej miąższości;
– przejście pod tunelem drogowym na Wisłostradzie;
– budowa tuneli pod Wisłą;
– budowa stacji Stadion z trzema peronami i połączeniem z odcinkiem II B;
– budowa stacji Dworzec Wileński pod skrzyżowaniem o bardzo dużym natężeniu ruchu kołowego;
– budowa dwóch komór do zawracania pociągów na końcach odcinka centralnego.
Wymienione trudności są zarówno natury technicznej (projekt, wykonawstwo, monitoring obiektów w strefie oddziaływania budowy), jak i organizacyjnej związanej z lokalizacją placu budowy, objazdami, przekładaniem instalacji podziemnych i uciążliwościami dla mieszkańców.

fot.1. Schemat centralnego odcinka II linii metra [2]
Jednym z najważniejszych problemów tej inwestycji był wybór metod budowy tuneli szlakowych i stacji. Uznano, że najbardziej racjonalnym rozwiązaniem jest drążenie odcinków szlakowych tarczami zmechanizowanymi (TBM typu EPB), stacje zaś zdecydowano się budować metodą odkrywkową. Przyjęto, że najbardziej uzasadnionym technicznie i ekonomicznie rozwiązaniem jest budowa wszystkich siedmiu stacji metodą stropową.Metoda ta została opisana w dalszej części artykułu na przykładzie stacji C9 Rondo Daszyńskiego.
Ze względu na przyjęty przebieg i niweletę centralnego odcinka II linii metra wszystkie stacje, a także komory rozjazdów i szyby startowe oraz odbiorcze tarcz TBM wykonywane są w głębokich wykopach, sięgających np. na stacjach Nowy Świat C12 i Powiśle C13 głębokości 26 m p.p.t., a w przegłębieniach nawet 30 m p.p.t. Płytsze są wykopy pod stacje na prawym brzegu Wisły – Stadion C14 i Dworzec Wileński C15 – ich głębokość wynosi około 15 m.
Fakt ten wraz ze skomplikowanymi warunkami geologiczno-inżynierskimi oraz hydrogeologicznymi i dużymi gabarytami tego rodzaju obiektów podziemnych stawia przed projektantami i wykonawcami II linii metra nowe wyzwania. Jest to również nowe doświadczenie dla krajowych projektantów.

fot. 2. Lokalizacja stacji Rondo Daszyńskiego [2]
Opis metody stropowej stosowanej na budowie II linii metra
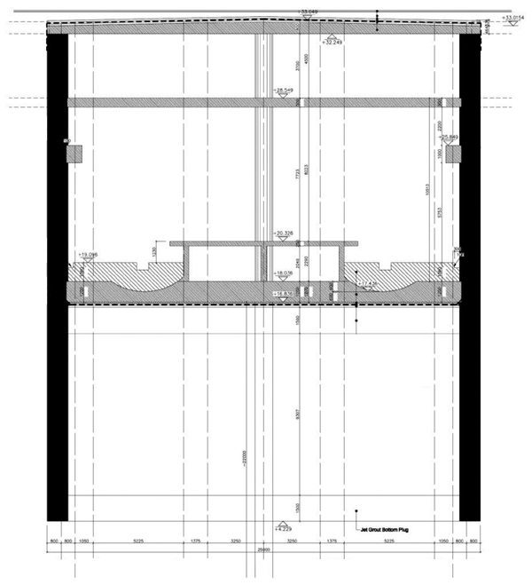
Jak wspomniano, wszystkie stacje są budowane metodą stropową, w fazach pokazanych na przykładzie wykonania pierwszej z budowanych stacji Rondo Daszyńskiego C9. Lokalizację stacji w mieście pokazano na fot. 2, a przekrój poprzeczny konstrukcji stacji – na rysunku.
Fazy budowy stacji w typowych przekrojach konstrukcyjnych są następujące [3]:
1) wykonanie ścian szczelinowych o grubości 0,8 m i 1,2 m i długości 27 m;
2) wykonanie pali i słupów stałych lub tymczasowych podtrzymujących stropy, posadowionych na głębokości około 37 m p.p.t.;
3) wykonanie w dwóch poziomach (pod płytą denną oraz na dnie ścian szczelinowych) korka uszczelniającego w technologii iniekcji strumieniowej jet grouting zabezpieczających przed napływem wód gruntowych podczas prac przy pogłębianiu wykopu oraz zmniejszających parcie wody na płytę denną;
4) głębienie wykopu do poziomu dolnej krawędzi pierwszego stropu – w tym przypadku w wykopie ze skarpami na niektórych stacjach wykop ten jest zabezpieczony ścianą berlińską;
5) wykonanie stropu stacji o grubości 1,20 m;
6) głębienie wykopu pod stropem z pozostawieniem otworów technologicznych do poziomu stropu pośredniego, tzn. do poziomu 8,80 m p.p.t.;
7) wykonanie stropu pośredniego o grubości 0,5 m;
8) głębienie pod stropem do poziomu rzędnej docelowej dna wykopu, tzn. do głębokości 17,50 m p.p.t.;
9) wykonanie płyty dennej o grubości 2,0 m.
Fazy budowy w zależności od zagłębienia poszczególnych stacji różnią się liczbą stropów pośrednich zapewniających stateczność ścian szczelinowych i przejmujących siły poziome wynikające z parcia gruntu, parcia wody oraz obciążenia naziomu ścian szczelinowych. Na stacjach płytszych, takich jak opisana stacja C9 oraz stacje Rondo ONZ C10 (głębokość wykopu 15,5 m p.p.t.), Stadion C14 i Dworzec Wileński C15, zaprojektowano jeden strop pośredni. Na stacjach głębszych – Świętokrzyska C11 (głębokość wykopu 24 m p.p.t.) i Nowy Świat C12 – dwa stropy pośrednie, a na stacji Powiśle C13 aż trzy poziomy podparcia ściany szczelinowej o grubości 1,4 m.
W obszarach stacji, w których pełnią one funkcję szybu startowego tarczy TBM EPB, zrezygnowano z wykonywania stropu głównego stacji, zastępując go rozporami stalowymi, a w stropach pośrednich wykonano odpowiedniej wielkości otwory technologiczne. Moment opuszczania tarczy TBM EPB do szybu i przejścia przez strop pośredni pokazano na fot. 3.
fot. 3. Operacja opuszczania tarczy TBM Maria do szybu startowego na stacji C9 – przejście tarczy przez specjalnie zaprojektowany do tego celu otwór technologiczny w stropie pośrednim (fot. autor)
Grubości wykonanych na wszystkich stacjach ścian szczelinowych wynikają z obliczeń statycznych, a więc m.in. z istniejących w rejonie stacji warunków geotechnicznych i poziomu wód gruntowych. Wynoszą one: 0,8 m; 1,0 m; 1,2 m oraz 1,4 m na wspomnianej stacji Powiśle. Również długości tych ścian i ich zagłębienie poniżej dna wykopu są dostosowane do istniejących warunków geologicznych i ciśnienia wody działającego na dno wykopu w jego fazie docelowej i wahają się od 27 m do nawet 53 m na stacji Świętokrzyska C11.
W projekcie wykonawczym większość pali podpierających stropy w fazach budowy (tymczasowe) i fazie eksploatacji (stałe) zastąpiono baretami o zagłębieniu od 37 m do 43 m p.p.t.
W zależności od istniejących warunków gruntowo-wodnych w obszarze budowanych stacji zaprojektowano jeden lub dwa poziomy korka uszczelniającego o grubości około 2 m, wykonanego w technologii iniekcji strumieniowej jet grouting. Na stacjach, które są posadowione w trzeciorzędowych iłach plioceńskich, zrezygnowano z wykonywania uszczelnienia dna wykopu (np. stacja Nowy Świat). Innym sposobem ograniczenia napływu wód gruntowych do wykopu było poszukiwanie warstw nieprzepuszczalnych gruntów na większych głębokościach aniżeli zaprojektowano dno ścian szczelinowych. W ten sposób przedłużono ściany szczelinowe na stacji Świętokrzyska C11 do głębokości 53 m p.p.t., tak aby posadowić je w warstwie wspomnianych wyżej iłów plioceńskich, których strop występował według rozpoznania geologiczno-inżynierskiego na głębokości około 50 m p.p.t.
Projektowanie obiektów II linii metra
Projekty budowlane obiektów II linii metra opracowano na podstawie dokumentów, m.in. takich jak Wielobranżowy projekt koncepcyjny [4] oraz Dokumentacja geotechniczna dla II linii metra [5]. W zakresie projektowania geotechnicznego stacji metra budowanych w głębokich wykopach problemem było:
– rozpoznanie podłoża, które w niektórych rejonach przeprowadzono do głębokości 50 m i nawet więcej;
– właściwa interpretacja wyników wierceń w otworach badawczych, a także badań geofizycznych i wyróżnienie warstw geotechnicznych, szczególnie w obrębie warstw trzeciorzędu;
– prawidłowa ocena parametrów fizycznych i mechanicznych gruntów metodami laboratoryjnymi, in situ, metodami geofizycznymi oraz interpretacja i korelacja wyników tych badań;
– ocena parametrów podłoża na różnych głębokościach zalegania dla tej samej warstwy geotechnicznej (iły plioceńskie) oraz dla różnych zakresów odkształceń;
– analiza warunków hydrologicznych i hydrogeologicznych, przepływów wód gruntowych, szczególnie w rejonie stacji Powiśle;
następnie:
– dobór metod obliczeniowych (MES, podłoże sprężyste), wybór narzędzi obliczeniowych (programy komputerowe);
– wybór modeli konstytutywnych gruntów i ocena parametrów tych modeli, aby właściwie opisać zmianę stanu naprężenia, np. w skonsolidowanych gruntach spoistych;
– modelowanie numeryczne w przestrzeni 2D i 3D – ustalenie siatki modelu i jej wymiarów w stosunku do rzeczywistych wymiarów obiektu, unifikacja warunków geotechnicznych w celu przyśpieszenia obliczeń numerycznych;
a na etapie opracowywania projektu budowlanego, a potem wykonawczego:
– projektowanie obudów wykopów dla dużych wartości obciążeń wynikających z głębokości wykopów oraz parcia wody;
– projektowanie głębokich posadowień (pale, kolumny jet grouting) sięgających ponad 40 m p.p.t.;
– projektowanie odwodnienia, analiza stateczności dna wykopu ze względu na działanie wody gruntowej, możliwość wystąpienia przebicia hydraulicznego w przypadku wykopów o głębokości 26 m p.p.t. posadowionych w skomplikowanych warunkach geotechnicznych;
– ocena oddziaływania tuneli i głębokich wykopów na otoczenie (budynki, infrastruktura podziemna) – prognoza przemieszczeń i ich wartości ostrzegawczych oraz alarmowych, ocena niecki osiadania nad tunelami drążonymi tarczą TBM;
– projekt monitorowania wszystkich obiektów znajdujących się w strefach oddziaływania budowy (ponad 400 obiektów);
– ustalenia zakresu stosowania norm krajowych (projektowanie rozpoczęto w 2010 r.) i norm europejskich.

rys. Konstrukcja stacji C9 – przekrój poprzeczny [3]
Od wielu lat zakres rozpoznania geologicznego dla celów budownictwa podziemnego, w tym obiektów liniowych, jakimi są tunele, jest przedmiotem dyskusji. W pracy [6] podano, że otwory badawcze należy rozmieszczać wzdłuż projektowanej trasy tuneli metra, w rozstawie około 100 m. Na ogół się przyjmuje, że ich liczba powinna wynosić od 5 do 20 na 1 km tunelu. W szczególnie niekorzystnych warunkach liczba ta może dochodzić do 30. Głębokość rozpoznania powinna sięgać od 20 m do 30 m poniżej spągu. Pożądane jest również oprócz wzdłużnych przekrojów geologiczno-inżynierskich wykonanie przekrojów poprzecznych [7]. Nadmierne zagęszczanie liczby otworów badawczych nie zawsze jest uzasadnione i nie zawsze prowadzi do dokładniejszego rozpoznania, a znacznie zwiększa koszty. Tunele szlakowe II linii metra są drążone tarczą zmechanizowaną typu EPB, czyli wyrównywanych ciśnień gruntowych. Zakres stosowania tego typu tarcz obejmuje grunty o średnicy ziaren od 0,001 mm do 0,6 mm, tzn. grunty spoiste i drobnoziarniste grunty niespoiste [8]. Dzięki takiemu doborowi tarczy TBM na budowie II linii metra technologia rekompensuje niedokładności w rozpoznaniu geologicznym. Wyjątkiem są miejsca istotnych zmian cech gruntów, np. u podnóża Skarpy Warszawskiej lub pod Wisłą, gdzie w obszarze zalegania iłów plioceńskich znajdują się niecki erozyjne wypełnione dużo słabszymi gruntami (piaskami o różnej granulacji i genezie). Potwierdzeniem właściwego doboru typu TBM są rekordowe postępy robót tarczy Maria, którą podczas drążenia północnego tunelu szlakowego metra między stacjami C9 a C10 wykonano 43 m tunelu na dobę. Odcinek ten był drążony poniżej poziomu wody gruntowej w uwarstwionych gruntach czwartorzędowych – glinach piaszczystych, piaskach gliniastych i piaskach o różnej granulacji.
Inaczej rozpoznanie geologiczno-inżynierskie powinno przebiegać w przypadku budowy stacji, które są głęboko posadowionymi budowlami podziemnymi o znacznej kubaturze. Wymiary w planie stacji wynoszą około 140 m x 24 m, a głębokość, jak podano na wstępie, od 16 m do ponad 26 m. W obrębie stacji znajdują się komory rozjazdu (C10), tory odstawcze (C9 i C15) i wentylatornie, również o znacznych gabarytach, wykonywane w głębokim wykopie. Ściany szczelinowe sięgające głębokości od 27 m do nawet 53 m mają za zadanie, oprócz funkcji konstrukcyjnej, ograniczenie napływu wód gruntowych do wykopu lub przy posadowieniu w gruntach spoistych całkowite ich odcięcie. Długość jednej sekcji ściany szczelinowej to prawie 6 m. Trudno na podstawie danych z otworów badawczych wykonanych w rozstawie 100 m ocenić układ warstw i głębokość ich zalegania z dokładnością do kilku metrów. Na konferencji WPPK 2013 [9] przedstawiono prezentację o kolejnych interpretacjach układu warstw podłoża na podstawie coraz gęściej wykonywanych otworów badawczych. Końcowy wynik odnośnie do położenia granicy między czwartorzędowymi piaskami a plioceńskimi iłami różnił się zasadniczo od pierwotnego. W obrębie iłów plioceńskich wykonano dodatkowe wiercenia, które wykazały, że są one bardzo niejednorodne, z dużą liczbą kilkucentymetrowych przewarstwień piasków pylastych, z wodą pod ciśnieniem. Taka sytuacja miała miejsce na wszystkich stacjach posadowionych w gruntach trzeciorzędowych. Z tej przyczyny nie zawsze uzyskano zakotwienie sekcji ścian szczelinowych w nieprzepuszczalnym podłożu, co umożliwiło filtrację wód gruntowych pod dnem ścian w obszar głębionego wykopu.
Z podanych wyżej faktów wynika, że przeprowadzenie rozpoznania podłoża na trasie II linii metra było prawdziwym wyzwaniem.Te doświadczenia dowodzą, jak ważna jest identyfikacja i ocena ryzyka wynikającego z warunków geologicznych, ocena prawdopodobieństwa możliwości wystąpienia niezgodności wyinterpretowanych przekrojów geologiczno-inżynierskich z rzeczywistym układem warstw geotechnicznych.
Dobór metod obliczeniowych polegał na wyborze między metodą elementów skończonych a metodą modułu sztywności podłoża. Pierwsza z nich była używana zarówno do obliczeń w przestrzeni 2D, jak i w przestrzeni 3D ze względu na skomplikowany układ konstrukcyjny korpusu stacji i elementów nośnych. To bez wątpienia ułatwiło wyznaczenie wartości sił wewnętrznych i momentów zginających w konstrukcji w każdej fazie budowy stacji. Z drugiej strony ograniczenia modelu (liczba elementów i węzłów) ze względu na czas prowadzenia obliczeń powodowały uproszczenia, głównie w układzie warstw geotechnicznych wprowadzanych do modelu numerycznego. Zmniejszenie liczby elementów skracało czas obliczeń, ale elementy tworzące siatkę miały wymiary sięgające kilku metrów. Konstytutywny model gruntu stosowany w analizie MES to sprężysty idealnie plastyczny model Coulomba-Mohra. Ocena parametrów tego modelu głównie dla iłów plioceńskich była bardzo trudna.Na Politechnice Warszawskiej podczas przygotowywania opinii oddziaływania budowy II linii metra na środowisko i sąsiednie obiekty wykonano obliczenia statyczne konstrukcji stacji, w tym ścian szczelinowych. Stwierdzono, że stosując typowe, normowe wartości E0, j’, ju, c’, cu, iłów, wyznaczane obydwoma wybranymi metodami, momenty zginające ściany stacji Nowy Świat i Powiśle osiągają wartość kilku tysięcy kNm/m. Wynikało to również ze statyki obudowy wykopu. Przyjęty przez wykonawcę system budowy II linii metra zakładał, że tarcze TBM po rozpoczęciu pracy z szybów startowych na stacjach Rondo Daszyńskiego C9 i Dworzec Wileński C15 będą kolejno przeprowadzane przez wykonane już stacje aż do szybów odbiorczych w zachodnim i wschodnim korpusie stacji Powiśle. Średnica tarczy TBM wynosi 6,3 m. Grubości płyty dennej na kolejnych stacjach wynoszą od 1,2 m do 2,0 m. Na stacji należy zapewnić przestrzeń poniżej dolnej krawędzi najniższego stropu pośredniego umożliwiającą przejście tarczy lub jej start i demontaż. Oznacza to, że odległość między dnem wykopu a punktem podparcia ściany szczelinowej stropem wynosi ponad 8 m. Tak duże przęsło ściany w powiązaniu ze słabymi parametrami podłoża powoduje właśnie tak duże wartości sił i momentów. Dlatego wykonano wiele dodatkowych badań i sondowania, aby możliwie dokładnie wyinterpretować wartości parametrów mechanicznych iłów plioceńskich w odniesieniu do stanu odkształcenia konstrukcji oraz głębokości ich zalegania. W ostatecznym rozwiązaniu przyjęto, że ściany szczelinowe na stacji Nowy Świat mają grubość 1,2 m, a na stacji Powiśle – 1,4 m. Obecnie główny korpus (ściany szczelinowe, stropy i płyta denna) obydwu wymienionych stacji jest z powodzeniem wykonany, a zarejestrowane przemieszczenia nie potwierdziły wcześniejszych obaw.
Właściwa ocena wspomnianych wyżej parametrów rzutowała też na prognozę kształtu i zasięgu niecki osiadania nad tunelami szlakowymi i na obliczenia progowych wartości osiadania budynków znajdujących się w strefie oddziaływania głębokich wykopów stacji.
Oprócz trudności technicznych podczas projektowania obiektów II linii metra pojawiło się wiele problemów legislacyjnych i administracyjnych,które miały znaczący wpływ na projekt. Jedną z nich była konieczność uzyskania pozwolenia na prace tarczą TBM od Okręgowego Urzędu Górniczego w Warszawie. Obecnie przyjmuje się, że budowa tuneli metra w Warszawie podlega ustawie – Prawo geologiczne i górnicze. Drążenie tunelu w pozwoleniu OUG określane jest jako „ruch zakładu górniczego”. Wiąże się to z koniecznością przestrzegania prawa, które jest specyficzne dla robót górniczych.
Natomiast stacje i pozostałe obiekty podziemne są budowane zgodnie z przepisami ustawy – Prawo budowlane. Oznacza to, że na 6 km centralnego odcinka II linii metra na przemian obowiązują dwie ustawy – Prawo geologiczne i górnicze oraz Prawo budowlane. Tarcze montowane są na stacjach pełniących funkcję szybów startowych, przechodzą przez szczytowe ściany szczelinowe i dodatkowe wzmocnienia, przechodzą też przez stacje, np. Rondo ONZ. Czy w takim przypadku na jednym obiekcie obowiązują dwie ustawy? Przy drążeniu tuneli centralnego odcinka metra nie występują podstawowe obiekty zakładu górniczego, Warszawa nie jest obszarem górniczym, nie ma też złóż przewidzianych do eksploatacji i nie istnieją sąsiednie zakłady górnicze.
Pod Wisłą wykonano tunel wodociągowy łączący ujęcie wody tzw. Grubą Kaśkę ze stacją uzdatniania wody na praskim brzegu. Budowano go metodą zatapiania gotowych elementów i w kesonach, zgodnie z przepisami Prawa budowlanego. Obecnie wykonanie pod Wisłą tunelu szlakowego metra D 14 między stacją Powiśle a stacją Stadion jest kwalifikowane jako „ruch zakładu górniczego”.
W Polsce buduje się coraz więcej tuneli komunikacyjnych i transportowych (Gdańsk, Łódź, Warszawa, Wrocław). Należy dążyć do nowelizacji prawa i uregulowania tych sprzecznych przepisów. Budowanie tuneli (bez względu na metodę) należy zaliczyć do robót budowlanych, tak jak to ma miejsce w wielu krajach Europy i świata.
Podsumowanie
Projekt „Budowa II linii metra” jest prowadzony w systemie „projektuj i buduj”.W praktyce oznacza to projektowanie interaktywne. Pierwsze przyjęte na etapie projektu budowlanego założenia i rozwiązania konstrukcyjne ulegają zmianom w wyniku działania wielu czynników. Obiekty II linii metra są zaliczane do III kategorii geotechnicznej. Projektowanie tej klasy budowli jest zawsze wyzwaniem.
prof. dr hab. inż. Anna Siemińska-Lewandowska
Politechnika Warszawska
Piśmiennictwo
1. W. Grodecki, A. Siemińska-Lewandowska, J. Lejk, II linia metra w Warszawie – perspektywy i metody jej realizacji, „Inżynieria i Budownictwo” nr 7-8/2007.
2. www.metrowaw.pl
3. Building design C09 – Daszyńskiego Roundabout, Station and MS4 – holding track; structural design report and calculations, ILF/AGP, March 2010.
4. BP Metroprojekt Sp. z o.o., AMC A.M. Chołdzyński Sp. z o.o. Wielobranżowy projekt koncepcyjny dla zaprojektowania i budowy odcinka centralnego II linii metra w Warszawie od Ronda Daszyńskiego do Dworca Wileńskiego, MN-L21-10-4670, Warszawa 2008.
5. Dokumentacja geotechniczna dla II linii metra od stacji Rondo Daszyńskiego do stacji Dworzec Wileński w Warszawie, GEOTEKO Projekty i Konsultacje Geotechniczne Sp. z o.o., lipiec 2010.
6. H. Stamatello, Tunele i miejskie budowle podziemne, Arkady, Warszawa 1971.
7. W. Grodecki, A. Siemińska-Lewandowska, Rozpoznanie geotechniczne do potrzeb budownictwa podziemnego, materiały konferencyjne z okazji Jubileuszowej Konferencji 60-lecia Wydziału Inżynierii i Kształtowania Środowiska SGGW, 2006.
8. M. Thewes, TBM tunneling challenges – redefining the state of the art. Tunnel, Collection of keynote lectures, ITA-AITES World Tunnel Congress 2007, s. 13–21.
9. K. Traczyński, M. Grela, Konsekwencje niedostatecznego rozpoznania budowy podłoża gruntowego na przykładzie różnych inwestycji budowlanych w Polsce, materiały konferencyjne Warsztat Pracy Projektanta Konstrukcji, Wisła 2013.
Referat, na którym oparty jest artykuł, był prezentowany na seminarium „Głębokie wykopy 2013” w marcu 2013 r. w Warszawie.




