Izolacje wodochronne chronią obiekt lub jego część przed szkodliwym wpływem wilgoci/wody oraz znajdujących się w niej agresywnych mediów.
W zależności od funkcji i miejsca wbudowania wśród izolacji wodochronnych wyróżnić można: izolacje w gruncie (fundamenty, stropy garaży podziemnych), izolacje dachów (dachy tradycyjne, zielone, odwrócone), izolacje basenów, tarasów/balkonów, pomieszczeń mokrych itp.
Przykładowy podział materiałów hydroizolacyjnych pokazano w tabeli.
W przypadku fundamentów rozróżnia się:
izolację przeciwwilgociową – hydroizolację wykonywaną w części podziemnej budynku posadowionego powyżej zwierciadła wody gruntowej, gdy nie występuje hydrostatyczne parcie wody opadowej na fundamenty/ściany fundamentowe oraz w strefie cokołowej;
izolację przeciwwodną – hydroizolację wykonywaną w części podziemnej, gdy budynek jest posadowiony powyżej zwierciadła wody gruntowej, lecz w gruntach nieprzepuszczalnych i występuje hydrostatyczne parcie wody opadowej, lub gdy fundamenty budynku (lub ich fragmenty) są położone poniżej zwierciadła wody gruntowej.
Izolacje mogą być wykonywane jako tzw. izolacje pierwotne (dla obiektów nowo wznoszonych) oraz wtórne (w systemach renowacji).

Rys. 1a Układ hydroizolacji budynku niepodpiwniczonego
1 – izolacja strefy cokołowej
2 – izolacja posadzki
3 – płyta posadzki
4 – ściana fundamentowa
5 – izolacja pionowa
6 – izolacja pionowa
7 – izolacja pozioma
8 – ława fundamentowa
9 – ściana parteru
Hydroizolację zagłębionych w gruncie elementów budynków i budowli podzielić można generalnie na izolacje:
– poziomą (na ławach fundamentowych, na ścianach fundamentowych),
– płyty fundamentowej,
– pionową ścian fundamentowych,
– strefy cokołowej,
– poziomą podłóg,
– stropów obiektów zagłębionych w gruncie, np. stropów garaży podziemnych.
Według normy DIN 18195:2000 Bauwerksabdichtung rozróżnia się wiele przypadków obciążenia wilgocią fundamentów.
– Obciążenie wilgocią zawartą w gruncie. Warunkiem jego występowania jest posadowienie budynku w niespoistym i dobrze przepuszczalnym gruncie (możliwość szybkiego wsiąkania wody opadowej w grunt poniżej poziomu posadowienia budynku i wykluczenie wystąpienia wysokiego poziomu wód gruntowych) – współczynnik wodoprzepuszczalności gruntu (współczynnik filtracji) k > 10-4 m/s.
– Obciążenie niezalegającą wodą opadową. Przypadek taki występuje, gdy w poziomie posadowienia i poniżej występują grunty spoiste uniemożliwiające szybkie wsiąkanie wody opadowej (k ≤ 10-4 m/s), przy czym jej nadmiar jest odprowadzany przez skutecznie działający drenaż.
– Obciążenie zalegającą wodą opadową. Warunkiem występowania jest posadowienie budynku w gruntach o niskiej wodoprzepuszczalności (k ≤ 10-4 m/s), co skutkuje wywieraniem parcia hydrostatycznego na hydroizolację przez spiętrzającą się okresowo wodę opadową. Poziom wody gruntowej musi znajdować się maksymalnie 30 cm poniżej spodu płyty (ławy) fundamentowej.
– Obciążenie wodą pod ciśnieniem. Sytuacja ta ma miejsce przy wysokim (powyżej poziomu posadowienia) poziomie wód gruntowych lub przy długotrwałym oddziaływaniu na fundamenty wody pod ciśnieniem.

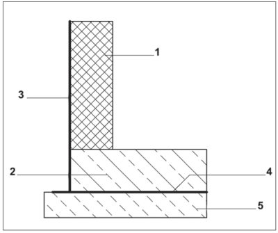
Rys. 1c Układ hydroizolacji budynku podpiwniczonego przy obciążeniu wodą
1 – ściana fundamentowa
2 – płyta denna
3 – izolacja pionowa
4 – izolacja płyty dennej
5 – konstrukcyjny beton podkładowy
Na wybór rozwiązania technologiczno-materiałowego izolacji fundamentów i przyziemiamają wpływ przede wszystkim dwa podstawowe czynniki:
– warunki gruntowo-wodne,
– obecność agresywnych wód gruntowych,
– rozwiązanie konstrukcyjne budynku (rodzaj fundamentu, występowanie podpiwniczenia, wysokość kondyg-nacji piwnicznej itp.),
– obecność dylatacji, przejść rurowych itp. trudnych i krytycznych miejsc.
Przy projektowaniu zabezpieczeń wodochronnych uwzględnić należy ponadto:
– rodzaj i stan podłoża (równość, możliwość powstania rys, wilgotność, wysezonowanie itp.),
– możliwości aplikacyjne w konkretnym obiekcie,
– kompatybilność materiałów hydroizolacyjnych (możliwość wykonania szczelnych połączeń),
– technologię uszczelnienia przejść rurowych, dylatacji itp.
Obciążenie wilgocią oraz niezalegającą wodą opadową wymaga zaprojektowania izolacji przeciwwilgociowej (zwanej także izolacją lekką),obciążenie zalegającą wodą opadową oraz wodą pod ciśnieniem wymaga zaprojektowania izolacji przeciwwodnej (zwanej także izolacją ciężką).
Izolacja powinna być wykonana od strony naporu wody/wilgoci (od strony zewnętrznej budynku/chronionego elementu – rys. 1).
Izolacja pozioma zapobiega kapilarnemu podciąganiu wilgoci przez mury.Pierwszą izolację poziomą wykonuje się na wierzchu ław fundamentowych, drugą natomiast pod stropem piwnic. W przypadku budynku niepodpiwniczonego może zaistnieć sytuacja, że poziom podłogi w pokojach jest porównywalny z poziomem otaczającego terenu. Należy wtedy dodatkowo wykonać poziomą izolację na wysokości 30–50 cm nad poziomem przyległego terenu. Izolacja pozioma ław fundamentowych musi być szczelnie połączona z izolacją pionową ścian fundamentowych oraz izolacją podposadzkową w piwnicy.

Izolacja pionowa zabezpiecza zagłębione w gruncie ściany przed naporem wilgoci.Zawsze jest połączona z izolacjami poziomymi i musi sięgać strefy cokołowej. Musi być chroniona przed uszkodzeniem, np. podczas zasypywania wykopów.
Izolacja strefy cokołowej zabezpiecza budynek przed oddziaływaniem wody rozbryzgowej.Powinna sięgać 50 cm powyżej poziomu betonowej opaski, w przypadku opaski żwirowej wysokość ta może być zredukowana do 30 cm.
Pozioma izolacja podposadzkowa piwnic zabezpiecza przedostawaniu się wilgoci przez warstwy podłogowe.Musi być wykonana całopowierzchniowo i szczelnie połączona z izolacją poziomą na ławach fundamentowych. W żadnym wypadku nie może zostać uszkodzona podczas dalszych robót wykończeniowych.
Tab. Przykładowy podział materiałów hydroizolacyjnych
|
Materiały podstawowe
|
||
|
bitumiczne
|
mineralne
|
z tworzyw sztucznych
|
|
roztwory asfaltowe
|
szlamy (mikrozaprawy)
|
folie uszczelniające (rolowe)
|
|
emulsje asfaltowe
|
bentonity
|
dyspersyjne polimerowe masy uszczelniające (folie w płynie)
|
|
pasty asfaltowe
|
tynki zaporowe
|
powłoki żywiczne (chemoodporne)
|
|
lepiki asfaltowe
|
|
|
|
masy asfaltowe
|
|
|
|
masy polimerowo-asfaltowe (kmb)
|
|
|
|
papy asfaltowe
|
|
|
|
papy polimeroasfaltowe
|
|
|
|
membrany samoprzylepne
|
|
|
|
Materiały uzupełniające
|
||
|
masy zalewowe
|
|
taśmy i kształtki uszczelniające (dylatacyjne)
|
|
kity asfaltowe
|
|
kity (elastyczne masy) uszczelniające
|
|
kity polimerowo-asfaltowe
|
|
|
Izolacja płyty dennej,wykonana na konstrukcyjnym betonie podkładowym (niedozwolone jest wykonywanie powłok wodochronnych na tzw. chudym betonie), chroni budynek posadowiony na płycie przed oddziaływaniem wilgoci lub naporem wody.Musi być odpowiednio chroniona przed uszkodzeniem podczas wykonywania płyty dennej oraz szczelnie połączona z izolacją
pionową.
mgr inż. Maciej Rokiel
Literatura
1. DIN 18195:2000-08 Bauwerksabdichtung.
2. Richtlinie für die Planung und Ausführung von Abdichtung mit kunststoffmodifizierten Bitumendickbeschichtungen (KMB) – erdberührte Bauteile. Deutsche Bauchemie e.V. 2010.
3. Richtlinie für die Planung und Ausführung von Abdichtung erdberührter Bauteile mit flexiblen Dichtungsschlämmen. Deutsche Bauchemie e.V. 2006.
4. M. Rokiel, Poradnik. Hydroizolacje w budownictwie. Wybrane zagadnienia w praktyce, wyd. II. Dom Wydawniczy MEDIUM, 2009.
5. J. Ważny, J. Karyś, Ochrona budynków przed korozją biologiczną, Arkady, Warszawa 2001.
6. Budownictwo ogólne, t. 2 Fizyka budowli, Arkady, Warszawa 2007.




