Problem bezpieczeństwa eksploatacji rozdzielnic niskiego napięcia w budynkach wielorodzinnych.
Sprawny przebieg montażu instalacji elektrycznych w budownictwie mieszkaniowym wielorodzinnym uzależniony jest od wielu istotnych elementów. Jednym z nich jest dobrze opracowana dokumentacja instalacji elektrycznych, z uwzględnieniem obowiązujących przepisów i norm. Wiele opracowanych dokumentacji dla instalacji elektrycznych w budynkach wielorodzinnych, realizowanych na budowach osiedli mieszkaniowych, nie zawiera nowych wymagań w zakresie zasilania lokali mieszkalnych. Przedstawione zostaną rozwiązania zasilania lokali mieszkalnych w budynkach wielorodzinnych za pośrednictwem rozdzielnic głównych licznikowych zlokalizowanych na klatkach schodowych, takie rozwiązanie używane było jeszcze w pierwszej dekadzie XXI w., obecnie system rozdzielnic piętrowych w nowo budowanych obiektach jest używany sporadycznie. Często są stosowane różne rozwiązania nieodpowiadające wymaganiom obowiązujących norm i przepisów. Większość opisanych w niniejszym artykule projektów została opracowana na podstawie normy [1] oraz podręcznika [2], które nie zawierają wymagań obecnie obowiązujących przepisów i norm.

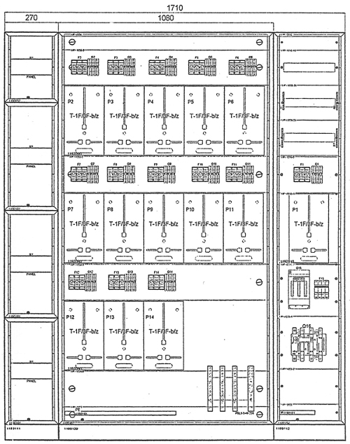
Rys. 1 Schemat rozdzielnicy głównej RG/A z tablicą administracyjną TA oraz czterema rozdzielnicami piętrowymi wg [1]
Warianty rozdzielnic licznikowych budowanych w budynkach wielorodzinnych
Rozdzielnice piętrowe zasilające mieszkania na poszczególnych kondygnacjach
W budowanych jeszcze nawet 10-15 lat temu budynkach często stosowany był system rozdzielnic piętrowych, zasilanych z rozdzielnicy głównej za pośrednictwem głównego pionu WLZ według normy [1]. Rozwiązanie to charakteryzuje się oddzieleniem rozdzielnicy głównej od szeregu rozdzielnic piętrowych. Na parterze klatki schodowej w pobliżu złącza kablowego lokalizowana była rozdzielnica główna, a z niej wyprowadzany pion WLZ, z którego z kolei zasilane są rozdzielnice piętrowe (rys. 2). Taki, sugerowany przez normę [1], układ zasilania lokali mieszkalnych charakteryzuje się kilkoma bardzo poważnymi wadami.
1. Pierwsza wada to umieszczenie rozdzielnic piętrowych w obudowach metalowych na każdym piętrze. W przestrzeni przeznaczonej do komunikacji osobowej, jaką jest klatka schodowa, mamy pracujące pod napięciem urządzenia rozdziału energii elektrycznej i uziemioną metalową balustradę klatki schodowej znajdujące się w zasięgu człowieka. Są to warunki bardzo sprzyjające porażeniu prądem elektrycznym na klatce schodowej.
2. Drugą wadą układu zasilania lokali mieszkalnych za pośrednictwem rozdzielnicy głównej i piętrowych jest duża materiałochłonność i tym samym znaczny koszt. Do wykonania kompletu rozdzielnic głównej i czterech piętrowych, o wysokości 2,5 m każda, producent musi zużyć ok. 300 kg blachy stalowej o grubości 1-1,5 mm, a w każdej rozdzielnicy zabudować drogie miedziane rozgałęźniki szynowe.
3. Zamontowanie liczników w rozdzielnicach piętrowych znacznie utrudnia wprowadzenie elektronicznego odczytu liczników.
4. Według zaleceń normy [3] zabezpieczenia przedlicznikowe powinny być zamontowane na tablicach licznikowych, ten wymóg nie jest spełniany. Zabezpieczenia przedlicznikowe są też zgrupowane i zamontowane w dolnej części rozdzielnic piętrowych zamiast na tablicach licznikowych.
5. Rozdzielnice nie zawierają przedziałów dla instalacji internetowej, telewizyjnej, telefonicznej, kontroli dostępu, domofonowej i przeciwpożarowej.
6. Rozdzielnice piętrowe zajmują znaczną powierzchnię komunikacji osobowej na klatkach schodowych (0,62 x 0,25 = 0,2 lm2) na każdym spoczniku.
7. Rozdzielnica główna i piętrowe dość często są obudowane tynkowanymi ściankami z cegły na całej ich wysokości, co oczywiście zwiększa koszty instalowania rozdzielnic. Omówione rozdzielnice pochodzą z lat 90. ubiegłego wieku i jak wynika z ich charakterystyki, nie powinny być stosowane przede wszystkim ze względu na ryzyko porażenia prądem elektrycznym.
Możliwe jest wykonanie instalacji zasilania liczników w budynku wielorodzinnym za pośrednictwem linii WLZ w układzie pierścieniowym, ułożonej w bruździe na całej wysokości klatki schodowej; tablice licznikowe montowane są we wnękach przy mieszkaniach i instalacja jest wtedy bezpieczna.

Rys. 2 Rozdzielnica piętrowa. Zasilanie lokali mieszkalnych za pośrednictwem rozdzielonych przestrzennie rozdzielnicy głównej i kilku piętrowych stosowne jest sporadycznie
Poprawa warunków eksploatacyjnych rozdzielnic piętrowych w obudowach stalowych
W latach 1975-2015 w Polsce zostało zainstalowanych i jest eksploatowanych kilkadziesiąt tysięcy rozdzielnic piętrowych w obudowach stalowych; projekt został opracowany (1975-1978 r.) przez Biuro Projektów Elektroprojekt Warszawa „Katalog zunifikowanych tablic bloków energetycznych dla budownictwa mieszkaniowego”, realizowanego metodą przemysłową. Na jego podstawie wykonywane były instalacje elektryczne w budownictwie mieszkaniowym, w tym rozdzielnice piętrowe w obudowach stalowych. Zachodzi pilna potrzeba uzupełnienia rozdzielnic piętrowych w zakresie bezpiecznej eksploatacji przez dostosowanie ich do wymagań obecnie obowiązujących przepisów i norm.
W celu wyeliminowania wystąpienia niebezpiecznej różnicy potencjałów między metalową obudową rozdzielnicy a metalową balustradą klatki schodowej należy połączyć przewodem miedzianym o odpowiednim przekroju wszystkie obudowy rozdzielnic z metalowymi balustradami (ekwipotencjalizacja). Drugim wskazanym skutecznym środkiem ochrony przed porażeniem prądem elektrycznym jest obudowanie rozdzielnic płytami meblowymi jako materiałem izolacyjnym. Nie należy używać płyt kartonowo-gipsowych, wymagających stosowania stelażu stalowego.

Rys. 3 Rozdzielnica główna z przedziałem zasilającym i licznikowym
Rozdzielnice licznikowe z pojedynczych skrzynek
Innym rozwiązaniem rozdziału energii elektrycznej w budynkach wielorodzinnych spotykanym sporadycznie jest zgrupowanie liczników i zabezpieczeń przedlicznikowch dla wszystkich mieszkań, lokali użytkowych, administracji oraz węzła cieplnego budynku w rozdzielnicy głównej, usytuowanej na parterze, w klatce schodowej lub wiatrołapie w sąsiedztwie złącza kablowego. Rozdzielnica taka zestawiona jest z indywidualnych skrzynek blaszanych o wymiarach 560 mm, 420 mm, 200 mm. Zasilanie bezpieczników przedlicznikowych i przyłączenie wewnętrznych linii zasilających lokale mieszkalne realizowane jest na zewnątrz, na tylnej ścianie rozdzielnicy, ze względu na zbyt małą głębokość skrzynek – 200 mm. Rozwiązanie takie jest niezgodne z normą [4], która nie dopuszcza, by wewnętrzne oprzewodowanie rozdzielnicy głównej znajdowało się poza jej obudową. Brak komunikacji między skrzynkami uniemożliwia wprowadzenie w najbliższej przyszłości przekazywania stanu liczników drogą elektroniczną. Konstrukcja ma znaczną masę, np. rozdzielnica główna z 12 licznikami – 150 kg, co wynika z bardzo dużego zużycia stali ze względu na podwójne ścianki między indywidualnymi skrzynkami.

Fot. 1 Przedział zasilania uwzględniający wymagania norm i przepisów

Fot. 2 Przedział licznikowy rozdzielnicy wg normy

Fot. 3 Rozdzielnica licznikowa, rozprowadzenie wiązek przewodów od wyłącznika głównego do szyn rozgałęźnych i od nich do tablic licznikowych
Rozdzielnice główne z przedziałami licznikowym i zasilającym
Główne rozdzielnice z przedziałami licznikowym i zasilającym montowane są w przestrzeni publicznej ogólnie dostępnej i dlatego powinny być obudowane przegrodą izolacyjną w postaci meblościanki z drzwiami, aby wykluczyć przypadkowe dotknięcie przez osoby postronne. Ten sposób optymalizuje warunki bezpiecznej eksploatacji rozdzielnic.
Na rys. 3 przedstawiono konfigurację takiej rozdzielnicy, spełniającej tylko w ograniczonym zakresie wymagania aktualnych przepisów i zalecenia normy [4].
Przez podział rozdzielnicy na przedziały zasilający i licznikowy stworzono optymalne warunki identyfikacji aparatów z obwodami oraz bezpieczniejszą eksploatację rozdzielnicy.
W przedziale zasilającym są zainstalowane: wyłącznik główny z cewką wzrostową, zabezpieczenie przeciw- przepięciowe, kompletny zestaw wyłączników dla obwodów administracyjnych, przewody zasilające kotłowni gazowej lub węzła cieplnego, wentylacji, windy osobowej, licznika administracyjnego.
Obwody administracyjne wychodzące z rozdzielnicy należy zakończyć listwą zaciskową.
Wszystkie aparaty w przedziale zasilającym są opisane zgodnie ze schematem zasilania.
W przedziale licznikowym w dolnej części znajduje się most szynowy, wyżej są zainstalowane liczniki dla lokali mieszkalnych i użytkowych wraz z przynależnymi zabezpieczeniami przedlicznikowymi i rozłącznikami.
Przy każdym zabezpieczeniu przed- licznikowym są zamocowane zaciski dla przewodu neutralnego N i ochronnego PE.
Za pośrednictwem rozłącznika zalicznikowego lokator ma możliwość wyłączenia napięcia zasilającego tablicę mieszkaniową.
W niektórych domach (np. osiedli w Trójmieście) w budynkach wielorodzinnych zainstalowano rozdzielnice licznikowe wykonane zgodnie z wymaganiami wymienionych w artykule norm i przepisów.
Gabaryty rozdzielnic są skatalogowane przez producentów (m.in. LAMEL, Elektromontaż Gdańsk, RadioIex Gdańsk, Siemens), dostosowane są do liczby liczników i niezbędnych aparatów elektrycznych, zabudowanych w wydzielonych przedziałach.
Na fot. 1 przedstawiono wykonany i zamontowany przedział zasilania, uwzględniający wymagania norm i przepisów, z widocznym zabezpieczeniem przeciwprzepięciowym, licznikiem administracyjnym i jego zabezpieczeniem przedlicznikowym oraz rozłącznikiem zalicznikowym. Przedział wyposażono w drzwi z zamkiem baskwilowym i kieszenią na dokumentację powykonawczą. Wykonany i zabudowany przedział licznikowy rozdzielnicy pokazano na fot. 2. Wyposażenie przedziału odpowiada wymaganiom norm i przepisów. Na tablicach licznikowych znajdują się zamontowane i zaplombowane liczniki. Zabezpieczenia przedlicznikowe i rozłącznik zalicznikowy zamontowane są na tablicach licznikowych z zaciskami dla przewodów N i PE. Zabezpieczenia przedlicznikowe – bezpieczniki oraz rozłączniki zalicznikowe – mogą być zastąpione wyłącznikami taryfowymi. Płyty maskujące, na których zamocowane są zabezpieczenia przedlicznikowe i rozłączniki, są przystosowane do plombowania. Przedstawiony przedział licznikowy przygotowany jest do zdalnego pomiaru zużytej energii elektrycznej. Konstrukcje rozdzielnic licznikowych wykonywane są z blachy stalowej o grubości 1-1,5 mm. Powinny spełniać wymagania dla aparatów, szczególnie w zakresie stopnia ochrony (szczelności) dla miejsca instalowania rozdzielnicy.

Rys. 4 Rozdzielnica licznikowa zintegrowana z dobudowanymi przedziałami medialnymi
Rozdzielnice licznikowe zintegrowane
Rozdzielnice licznikowe ustawiane są na parterze lub w piwnicy budynku. Kable przyłączy energetycznego i medialnych wchodzą do budynku przez autonomiczne przepusty w ścianie fundamentowej i dalej są wprowadzane do wspólnej rozdzielnicy. Wymiary przedziałów medialnych odpowiadają potrzebom poszczególnych operatorów.
Wymagania aktualnych przepisów i norm
Przy projektowaniu i konstruowaniu rozdzielnic licznikowych oraz wytwarzaniu powinny być spełnione podstawowe wymagania bezpiecznej eksploatacji. Wymagania te są ujęte w normie [4] i przedstawiają się następująco:
– ochrona przed porażeniem prądem elektrycznym oraz integralność obwodów ochronnych,
– wytrzymałość zwarciowa,
– odstępy izolacyjne powierzchniowe i powietrzne,
– prawidłowość przyłączenia obwodów zewnętrznych,
– badanie granicznych przyrostów temperatur,
– przeprowadzenie badania wytrzymałości elektrycznej,
– sprawdzenie stopnia ochrony,
– sprawdzenie szyn zasilających wewnętrzne linie zasilające,
– sprawdzenie działania aparatów elektrycznych,
– sprawdzenie działania mechanicznego.
Dla wyposażenia elektrycznego, m.in. dla rozdzielnic licznikowych, przewidziano normy szczegółowe. Odnośnie do urządzeń zabezpieczających norma [3] w paragrafie 514.4 mówi: Urządzenia zabezpieczające powinny być tak zainstalowane i oznaczone, aby zabezpieczone obwody mogły być łatwo zidentyfikowane; w tym celu wymaga się grupowania urządzeń zabezpieczających w rozdzielnicach i tablicach.

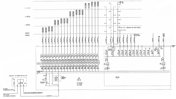
Rys. 5 Schemat przykładowej rozdzielnicy licznikowej dostosowany m.in. do zasady jednolitego rozprowadzenia instalacji elektrycznych w budynkach wielorodzinnych wg [5]
Ważnym elementem wyposażenia rozdzielnic licznikowych jest oprzewodowanie.
Zasilenie przewodami od wyłącznika głównego do szyn rozgałęźnych oraz od tych szyn do tablic licznikowych, dobór typu i przekroju przewodów oraz technologię układania ich w rozdzielnicy reguluje norma [9]. Rozprowadzenie przewodów w rozdzielnicy od wyłącznika głównego do szyn rozgałęźnych oraz od tych szyn do tablic licznikowych pokazano na fot. 3. Rozdzielnice licznikowe w budownictwie wielorodzinnym stanowią podstawowe urządzenia wyposażenia elektrycznego budynków. Główną funkcją rozdzielnic jest bezpieczny rozdział energii elektrycznej dla lokali mieszkalnych, usługowych, węzłów cieplnych, kotłowni, wentylacji, oświetlenia wewnętrznego i zewnętrznego, dźwigu oraz zasilanie instalacji telewizyjnej, domofonowej i obwodu bezpieczeństwa przeciwpożarowego. Rozdzielnice są zabudowywane na klatkach schodowych, w wiatrołapach lub piwnicach, czyli w miejscach publicznych. Urządzenia elektryczne instalowane w tych miejscach muszą spełniać wszystkie wymagania przepisów zawarte w ustawach [6, 7, 8], a szczególnie w zakresie ochrony od porażeń prądem elektrycznym. Każda wyprodukowana rozdzielnica musi mieć protokół kontroli technicznej producenta stwierdzający, że rozdzielnica licznikowa spełnia wymagania obowiązujących przepisów i norm.
Zgodnie z normą [10] podczas procedury kontrolnej należy sprawdzić:
1) czy w rozdzielnicy zastosowano wymagane układy ochrony od porażeń prądem elektrycznym;
2) czy przeprowadzono badania wytrzymałości zwarciowej miedzianego mostu rozgałęźnego;
3) czy zachowano wymagane odstępy izolacyjne powierzchniowe i powietrzne oraz prawidłowo przyłączono obwody zewnętrzne;
4) czy przeprowadzono badanie przyrostów temperatury na prototypie rozdzielnicy licznikowej;
5) wytrzymałość elektryczną izolacji rozdzielnicy oraz izolatorów mostu szynowego;
6) stopień ochrony rozdzielnicy (wymagany IP-54);
7) rozgałęźny most szynowy wewnętrznych linii zasilających;
8) działanie aparatów elektrycznych;
9) działania mechanicznego mocowania rozdzielnicy oraz zamykania drzwi przy zastosowanych uszczelkach.
Wyniki wszystkich badań i sprawdzeń powinny być potwierdzone odpowiednim protokołem.

Fot. 4 Rozdzielnica licznikowa niezgodna z normami i przepisami, wyłącznik główny i wyłączniki administracyjne razem z licznikami
Obecny stan produkcji rozdzielnic licznikowych
Instalacje elektryczne w budownictwie wielorodzinnym mieszkaniowym realizowane są zwykle przez małe kilkuosobowe firmy elektryczne, wytwarzające z reguły również rozdzielnice licznikowe we własnym zakresie. Obudowy rozdzielnic są zamawiane u producentów różnych konstrukcji blaszanych. Wyposażenie elektryczne rozdzielnic realizowane jest siłami własnymi. Taka sytuacja jest źródłem wielu nieprawidłowości.
Na rynku produkcji rozdzielnic jest kilka firm, które stosują przemysłowe technologie wytwarzania, tu też występują problemy ze stosowaniem przepisów i norm.
Występujące nieprawidłowości:
– stosowanie rozdzielnic piętrowych;
– montaż aparatów elektrycznych należących do danego obwodu licznikowego, w różnych częściach przedziału licznikowego (fot. 4 i 5);
– montowanie w jednym przedziale wszystkich aparatów składających się na rozdzielnicę: wyłącznika głównego, zabezpieczenia przeciwprzepięciowego, wyłącznika administracyjnego oraz tablic z licznikami;
– umieszczanie listew zaciskowych przewodów neutralnego N i ochronnego PE w górnej części rozdzielnicy zamiast na tablicy licznikowej;
– stosowanie szyn listwowych jako miedzianych szyn rozgałęźnych, brak odstępów izolacyjnych po powierzchni i w powietrzu oraz brak wytrzymałości zwarciowej;
– brak badań wytrzymałości zwarciowej mostu szynowego, stopnia ochrony rozdzielnicy, przyrostów temperatury w rozdzielnicy.

Fot. 5 Rozdzielnica licznikowa, wyposażenie niezgodne z normami i przepisami – rozłączniki i listwy zaciskowe przewodów N i PE ogólnie dostępne
Podsumowanie i wnioski
Elektrycy powinni pamiętać, że rozdzielnice licznikowe montowane w przestrzeni publicznej, jaką są budynki wielorodzinne, powinny gwarantować w szczególności ochronę przed porażeniem prądem elektrycznym.
Dla uporządkowania projektowania i wykonawstwa rozdzielnic należy dążyć do tego, aby:
1. Nastąpiła nowelizacja normy N SEP-E-002 Instalacje elektryczne w obiektach budowlanych, wydanej 25 czerwca 2003 r. (dostosowanie jej do uregulowań zawartych w obowiązujących przepisach i normach).
2. Dostawca energii elektrycznej do budynku wielorodzinnego podłączał kabel zasilający budynek pod warunkiem okazania protokołu kontroli technicznej stwierdzającego, że rozdzielnica spełnia wszystkie wymagania przepisów i norm.
3. Inwestor budynku wielorodzinnego, przy zawieraniu umowy na realizację instalacji elektrycznych w budynku, żądał od projektanta i wykonawcy instalacji, aby była zaprojektowana i wykonana (szczególnie rozdzielnice) zgodnie z wymaganiami przepisów i norm.
4. Producenci rozdzielnic licznikowych zobowiązani byli do wykonania prototypu wzorca rozdzielnicy, np. dla 12 liczników, w której będą zastosowane wszystkie wymagania przepisów i norm. Ten prototyp – wzorzec – wykonawca zleci instytucji certyfikującej w celu przeprowadzenia badań potwierdzających zgodność wyprodukowanej rozdzielnicy z obowiązującymi przepisami i normami. Certyfikat dla rozdzielnicy licznikowej byłby integralnym dokumentem procedury końcowego odbioru instalacji elektrycznej budynku.
5. Dla prototypu rozdzielnicy licznikowej z 12 licznikami przeprowadzić badanie wytrzymałości zwarciowej miedzianego mostu szynowego, wytrzymałości elektrycznej izolatorów wsporczych mostu szynowego, zachowania odstępów izolacyjnych powierzchniowych i powietrznych izolatorów mostu szynowego, przyrostów temperatury w rozdzielnicy; certyfikat dla rozdzielnicy licznikowej byłby integralnym dokumentem odbioru końcowego budynku, analogicznie jak protokoły badania instalacji elektrycznych w zakresie szybkiego wyłączenia obwodów, stanu izolacji przewodów, działania wyłączników różnicowoprądowych.
mgr inż. Stanisław Kampert
dr inż. Henryk Boryń
recenzent
Bibliografia
1. N SEP-E-002 Instalacje elektryczne w obiektach budowlanych. Instalacje elektryczne w budynkach mieszkalnych. Podstawy planowania.
2. H. Markiewicz, Instalacje elektryczne, wyd. 8, WNT, Warszawa 2008.
3. PN-IEC 60364-5-51 Dobór i montaż wyposażenia elektrycznego.
4. PN-IEC 60439-1 Rozdzielnice i sterownice nn, o napięciu znamionowym nieprzekraczającym 1000 V.
5. Rozporządzenie Ministra Infrastruktury z dnia 12 kwietnia 2002 r w sprawie warunków technicznych, jakim powinny odpowiadać budynki i ich usytuowanie.
6. Ustawa – Prawo budowlane z dnia 7 lipca 1994 r. z późn. zm.
7. Ustawa z dnia 16 kwietnia 2004 r. o wyrobach budowlanych z późn. zm.
8. Ustawa z dnia 30 sierpnia 2002 r. o systemie oceny zgodności z późn. zm.
9. PN-EEC 60364-5-52 Dobór i montaż wyposażenia elektrycznego, oprzewodowanie, dobór przewodów i układanie przewodów w rozdzielnicach.
10. PN-IEC 60364-6-61 Sprawdzanie odbiorcze.




