Mimo że koszty budowy pompowni ze wstępną separacją ciał stałych przewyższają koszty tradycyjnych obiektów, to w trakcie eksploatacji zużycie energii w tłoczniach jest znacznie mniejsze niż w tradycyjnych przepompowniach.
Istnienie sprawnego, właściwie zaprojektowanego i wykonanego systemu odprowadzania ścieków sanitarnych jest jednym z podstawowych warunków ochrony środowiska naturalnego zarówno na terenach zurbanizowanych, jak i w osiedlach wiejskich. Zazwyczaj układ sieci kanalizacyjnej odzwierciedla kierunki przepływu ścieków, od miejsc ich powstawania do miejsca zrzutu, i wynika przede wszystkim z układu sytuacyjno-wysokościowego jednostki osadniczej. W praktyce projektowej, ze względu na prostotę wykonania i stosunkowo niewielką zawodność działania, powszechne jest dążenie do planowania sieci, w których przepływ ścieków następuje grawitacyjnie dzięki ułożeniu kanałów ze spadkiem w kierunku oczyszczalni. Niestety, bardzo często naturalne ukształtowanie terenu, zbytnie rozproszenie zabudowy, a tym samym znaczna rozległość ka- nalizowanego obszaru uniemożliwiają wykorzystywanie wyłącznie grawitacyjnego ruchu ścieków. W takim przypadku właściwe funkcjonowanie sieci kanalizacyjnej jest możliwe jedynie przy zastosowaniu dodatkowych obiektów w postaci przepompowni ścieków.
Lokalizowanie pompowni ścieków w systemie związane jest przede wszystkim z racjonalnym rozwiązaniem układu wysokościowego kanalizacji oraz dążeniem do zapewnienia najbardziej korzystnych warunków współdziałania jego elementów. Miejsce usytuowania obiektu powinno zapewnić zmniejszenie zagłębień kanałów, umożliwić lokalne podnoszenie ścieków czy ich transport na znaczne odległości [2].

Fot. 1 Przykład zabudowy przepompowni Aqualift F XL dla budynku z włączeniem do kanalizacji grawitacyjnej
Przepompownie ścieków z pompami zatapialnymi
Do przetłaczania ścieków najczęściej wykorzystywane są pompy wirowe zatapialne, przystosowane do pracy w różnych warunkach. Szeroki asortyment dostępny na rynku i powszechność stosowania tego rodzaju agregatów pompowych w istotny sposób uprościły zarówno budowę, jak również eksploatację obiektów przepompowni ścieków. Są to obiekty o prostym schemacie działania, zwartej budowie, niewielkiej kubaturze. Pompy zanurzone oraz układ współpracujących z nimi przewodów stwarzają warunki umożliwiające przetłaczanie ścieków zawierających zanieczyszczenia w postaci ciał stałych oraz materiałów włóknistych. Cechą charakterystyczną przepompowni zbiornikowych jest ich mały ciężar, wysoka trwałość i szczelność zbiornika w czasie eksploatacji oraz stosunkowo prosty i łatwy montaż. Obecnie na rynku krajowym działa wiele firm, oferujących pompownie ścieków w postaci kompletnych obiektów dostarczanych na plac budowy, które po montażu i rozruchu techniczno-hydraulicznym są gotowe do pracy. Ich podstawowe wyposażenie obejmuje obudowę (zbiornik), układ rur wraz z armaturą oraz układ elektryczny zasilająco-sterujący.
Standardowe pompownie ścieków wyposażone są w jedną (układ bez pompy rezerwowej zainstalowanej w komorze pompowni) lub więcej równolegle połączonych pomp zatapialnych (jedna pompa zawsze stanowi rezerwę układu). W zależności od rodzaju pompowanych ścieków oraz wymaganej wydajności pompowni stosowane są pompy zatapialne z wirnikiem otwartym, z wirnikiem zamkniętym jednokanałowym lub pompy z wbudowanym wirnikiem rozdrabniającym (nożem tnącym).
Tab. 1 Porównanie tłoczni z pompowniami tradycyjnymi
|
Tłocznia ścieków ze wstępną separacją ciał stałych |
Przepompownia tradycyjna (pompy zatapialne) |
|
Ograniczone do minimum zagrożenie wystąpienia niedrożności pomp |
Duże zagrożenie zadławienia pomp powoduje konieczność stosowania krat lub wirników ze swobodnym przelotem |
|
Zmniejszone zużycie części hydraulicznej pomp z powodu separacji ciał stałych |
Szybsze zużywanie się wirników pomp ze względu na kontakt ze stałymi zanieczyszczeniami (np. piasek) |
|
Brak bezpośredniego kontaktu silników pomp ze ściekami |
Pompy zatopione w zbiorniku są bardziej wrażliwe na agresywne ścieki |
|
Wysoka sprawność ze względu na stosowanie wirników kanałowych, co pozwala na ograniczenie mocy silników |
Konieczność stosowania wirników ze swobodnym przelotem zmniejsza sprawność i powoduje niekorzystny wzrost mocy silników |
|
Sucha komora pomp ułatwia prace konserwacyjne i naprawcze |
Utrudnione jest zachowanie warunków bezpieczeństwa i higieny pracy |
|
Zmniejszona uciążliwość dla otoczenia z powodu braku konieczności wentylacji komory zbiorczej |
Wentylacja zbiorników wpływa niekorzystnie na otoczenie |
|
Separacja ciał stałych pozwala na stosowanie wirników kanałowych, co umożliwia znaczące podniesienie ciśnienia roboczego i pompowanie ścieków na większe odległości |
Konieczność stosowania wirników z wolnym przelotem (co najmniej 0 80) wpływa niekorzystnie na możliwość osiągania wysokich ciśnień roboczych |
|
Ograniczona pojemność zbiornika zapobiega zagniwaniu ścieków i tworzeniu siarkowodoru |
Powstawanie kożuchów ściekowych i osadów w połączeniu ze zwiększoną pojemnością zbiornika stwarza zagrożenie występowania niebezpiecznych gazów |

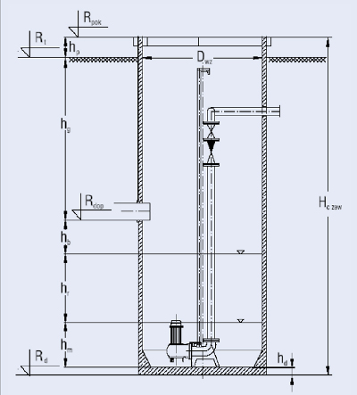
Rys. 1 Typowe rozwiązanie pompowni ścieków z pompami zatapialnymi
Tłocznie ścieków z separacją ciał stałych
Ścieki wpływają do komór oddzielających ciała stałe od pomp. Zawarte w ściekach części stałe zatrzymywane są w komorze (separatora) za pomocą specjalnych systemów oddzielających. Ścieki pozbawione grubszych zanieczyszczeń wpływają do zbiornika. Po całkowitym napełnieniu zbiornika klapa zwrotna zamyka dopływ. Pompa, która sterowana jest w zależności od napełnienia zbiornika, włącza się i tłoczy podczyszczone ścieki przez komorę oddzielającą ciała stałe do rurociągu tłocznego. Oddzielone w komorze grubsze zanieczyszczenia zostają porwane wraz z podczyszczonymi ściekami i komora zostaje całkowicie wyczyszczona. Ścieki dopływają w trakcie pracy pompy przez drugą komorę i niepracującą pompę do zbiornika. Pompy pracują na zmianę. Wielkość zbiornika i liczba pomp oraz komór oddzielających zależą od ilości dopływających do przepompowni ścieków.
System komór oddzielających ciała stałe (separatorów) zabezpiecza optymalnie pompy przed zanieczyszczeniem i zapchaniem i redukuje koszty konserwacji do minimum [7].

Fot. 2 Typowe rozwiązanie pompowni ścieków z pompami zatapialnymi
Porównanie tradycyjnej pompowni z tłocznią
Zgodnie z definicją przepompownie ścieków stosowane są w systemach kanalizacji grawitacyjnej, gdy obszar objęty tą kanalizacją może być skanalizowany jedynie przez zastosowanie jednej lub kilku przepompowni ścieków [1]. Przepompownie ścieków mogą być jednokomorowe lub z wydzielonymi zbiornikami czerpalnymi, oddzielonymi ścianami szczelnymi od pomieszczenia pomp.
Natomiast tłocznie ścieków z separacją ciał stałych stosowane są zamiennie w stosunku do tradycyjnych przepompowni ścieków. W odróżnieniu od tradycyjnych przepompowni pompy (które nie są zatapialne) znajdują się w wydzielonym pomieszczeniu – komorze (nie są chłodzone ściekami). Ścieki napływają do zamkniętego zbiornika i są wypompowywane bez kontaktu z otoczeniem. System separacji powoduje, że ciała stałe nie przepływają przez pompę, nie stosuje się rozdrabniaczy oraz krat.

Rys. 2 Schemat przepompowni ze wstępną separacją – tłoczni [3]
Tab. 2 Zestawienie tłoczni ścieków na terenie gminy A
|
Lp. |
Wydajność instalacji tłoczni m3/h |
Maksymalny godzinowy dopływ ścieków m3/h |
Wysokość podnoszenia mH2O |
|
1 |
4,0 |
3,0 |
18,0 |
|
2 |
60,0 |
51,7 |
61,2 |
|
3 |
6,0 |
2,7 |
18,8 |
|
4 |
4,0 |
1,0 |
18,0 |
|
5 |
15,0 |
4,2 |
46,0 |
|
6 |
120,0 |
115,0 |
9,1 |
|
7 |
15,0 |
6,1 |
19,0 |
|
8 |
4,0 |
1,1 |
20,0 |
|
9 |
4,0 |
1,3 |
22,0 |
|
10 |
4,0 |
1,1 |
20,0 |
|
11 |
15,0 |
11,6 |
21,8 |
Analiza pracy tłoczni i tradycyjnych przepompowni ścieków
Do oceny pracy przyjęto tłocznie i pompownie zbiornikowe w dwóch miejscowościach na Śląsku. Na terenie gminy A znajduje się jedenaście tłoczni ścieków. Są to pompownie, które w większości pracują od czerwca 2007 r.
Analizie poddano dziewięć tradycyjnych przepompowni ścieków z pompami zatapialnymi zlokalizowanych na terenie miasta B.
Do obliczeń zebrano dane dotyczące objętości przetłoczonych ścieków, zużycie energii oraz czas pracy przepompowni od maja do października 2015 r., natomiast dla przepompowni tradycyjnych zestawiono informacje na temat objętości przepompowanych ścieków oraz wielkości zużytej energii od stycznia do listopada 2015 r. [3]. Na podstawie informacji o objętości przepompowanych ścieków oraz zużytej energii potrzebnej do przepompowania ścieków obliczono wskaźnik określający wielkość energii elektrycznej zużytej na przepompowanie metra sześciennego ścieków. Jest to parametr decydujący o energochłonności przepompowni ścieków [2]

gdzie: e – wskaźnik energochłonności [kWh/m3]; N – zużycie energii elek
trycznej na przepompowanie ścieków [kWh]; Q – objętość przepompowanych ścieków [m3].

Fot. 3 Komora przepompowni ze wstępną separacją – tłoczni
Na rys. 3 przedstawiono współczynnik energochłonności dla poszczególnych obiektów.
Do oceny pompowni zaproponowano jednostkowe zużycie energii elektrycznej potrzebnej na przepompowanie 1 m3 ścieków na 1 m wysokości podnoszenia ej [2]
[kWh/m3 mH2O]
gdzie: ej – jednostkowy wskaźnik energochłonności [kWh/m3 mH2O]; e – wskaźnik energochłonności [kWh/m3]; H – wysokość podnoszenia pompy mH2O.
Obliczono średni jednostkowy wskaźnik energochłonności poszczególnych obiektów, a wyniki zestawiono w tab. 4 oraz na rys. 4.
Średnie jednostkowe wskaźniki energochłonności dla analizowanych przepompowni tradycyjnych z pompami zatapialnymi i tłoczni ścieków przedstawiono na rys. 5.
Porównując analizowane pompownie, można stwierdzić, że koszty, jakie należy ponieść na przepompowanie metra sześciennego ścieków na wysokość mH 2O w przepompowni, 7,5-krotnie przekraczają koszty przepompowania tej samej objętości ścieków w przypadku zastosowania tłoczni.

Rys. 3 Wskaźnik określający zużytą energię elektryczną w kWh na przepompowanie metra sześciennego ścieków

Rys. 4 Porównanie jednostkowego wskaźnika energochłonności kWh/m3/mH2O
Tab. 3 Zestawienie przepompowni ścieków na terenie miasta B
|
Lp. |
Wydajność instalacji przepompowni m3/h |
Moc pomp kW |
|
1 |
4 |
2,2 |
|
2 |
4 |
1,5 |
|
3 |
60 |
22 |
|
4 |
4 |
4,4 |
|
5 |
15 |
5,9 |
|
6 |
120 |
22 |
|
7 |
6 |
11 |
|
8 |
4 |
4,4 |
|
9 |
4 |
2,4 |
Posumowanie
Przeanalizowano pracę dziewięciu tradycyjnych przepompowni ścieków (z pompami zatapialnymi), które pracują na terenie eksploatowanym przez przedsiębiorstwo wodociągów i kanalizacji w mieście B. Analizie poddano również pracę 11 tłoczni ścieków wybudowanych na terenie gminy A obsługiwanych przez gminny zakład wodociągów. Z przeprowadzonych obliczeń wynika, że bardziej energochłonne są tradycyjne pompownie ścieków z pompami zatapialnymi. Zużywały one zdecydowanie więcej energii potrzebnej na przepompowanie metra sześciennego ścieków na wysokość metra H2O.
Dla tradycyjnych przepompowni ścieków średni jednostkowy wskaźnik zużycia energii potrzebnej do przepompowania metra sześciennego ścieków na wysokość metra H2O wyniósł 0,60 [kWh/m3/mH2O], natomiast dla pompowni ze wstępną separacją – tłoczni ścieków wskaźnik ten osiągnął wartość 0,08 [kWh/m3/mH2O] (jest to 7,5 razy więcej).
Z doświadczenia wynika, że przedsiębiorstwa zajmujące się zarówno odprowadzaniem ścieków, jak również te, które eksploatują sieci kanalizacyjne rezygnują z budowy pompowni tradycyjnych. Mimo że koszty budowy pompowni ze wstępną separacją ciał stałych przewyższają koszty tradycyjnych obiektów o 1,3-3 razy, to w trakcie eksploatacji zużycie energii w tłoczniach jest znacznie mniejsze niż w przepompowniach tradycyjnych.

Rys. 5 Średni jednostkowy wskaźnik energochłonności analizowanych przepompowni ścieków
Tab. 4 Zbiorcze zestawienie średnich wskaźników zużycia energii potrzebnej do przepompowania metra sześciennego ścieków na wysokość mH2O
|
Lp. |
Zużycie energii kWh |
Objętość przepompowanych ścieków m3 |
Zużycie energii na przepompowanie 1 m3 ścieków na wysokość 1 m kWh/m3/mH2O |
|
|
1 |
665,50 |
266,00 |
0,139 |
TŁOCZNIE ŚCIEKÓW
|
|
2 |
7 852,40 |
47 118,92 |
0,003 |
|
|
3 |
1 719,90 |
2 579,73 |
0,035 |
|
|
4 |
939,30 |
1 407,71 |
0,015 |
|
|
5 |
75,38 |
105,64 |
0,033 |
|
|
6 |
372,80 |
223,64 |
0,089 |
|
|
7 |
36,50 |
14,58 |
0,125 |
|
|
8 |
6 707,20 |
80 483,90 |
0,009 |
|
|
9 |
254,30 |
101,58 |
0,139 |
|
|
10 |
253,90 |
101,51 |
0,125 |
|
|
11 |
503,20 |
147,68 |
0,155 |
|
|
1 |
3 105,62 |
3 097,00 |
1,003 |
PRZEPOMPOWNIE ŚCIEKÓW |
|
2 |
1 845,81 |
3 347,00 |
0,551 |
|
|
3 |
18 826,00 |
95 014,30 |
0,198 |
|
|
4 |
2 473,71 |
4 514,90 |
0,548 |
|
|
5 |
5 446,16 |
35 532,30 |
0,153 |
|
|
6 |
5 404,00 |
77 926,40 |
0,069 |
|
|
7 |
2 137,55 |
14 863,40 |
0,144 |
|
|
8 |
1 915,89 |
1 612,40 |
1,188 |
|
|
9 |
1 560,41 |
962,30 |
1,622 |
Z badań wynika, że koszt energii elektrycznej to zaledwie 5-10% kosztów całkowitych. Duży procent kosztów stanowi konserwacja, naprawa oraz remonty. W starszych, tradycyjnych pompowniach ścieków awarie najczęściej spowodowane są zatykaniem się pomp. Aby wykluczyć możliwość zablokowania pomp w wyniku nagromadzenia ciał stałych między wirnikiem a obudową pompy, stosowane są pompy z dużym wolnym przelotem umożliwiające bezpieczne pompowanie ścieków. Z informacji zasięgniętych w gminnym zakładzie wodociągowym w A wynikało, że tłocznie pracujące na tym terenie działają obecnie bezawaryjnie.
Kolejnym problemem podczas eksploatacji przepompowni ścieków są skratki. W tłoczniach ścieki surowe dopływają do separatora, gdzie następuje oddzielenie części stałych, a przy uruchomieniu pompy ciśnienie porywa zgromadzone zanieczyszczenia stałe do rurociągu tłocznego. Nie mają one bezpośredniego kontaktu z wirnikami pomp i są transportowane do systemu kanalizacyjnego. Natomiast w pompowniach tradycyjnych skratki są usuwane ręcznie i wywożone w miejsca przeznaczone do ich magazynowania. PWiK w mieście B ma podpisane umowy z firmą, która zajmuje się utylizacją tych odpadów. Po zgromadzeniu odpowiedniej objętości są przekazywane firmie posiadającej stosowne uprawnienia do gospodarowania odpadami. Niektóre z przedstawionych przepompowni ścieków posiadają pompy z wirnikami rozdrabniającymi zanieczyszczenia stałe, które dalej transportowane są rurociągami tłocznymi, jednak wykazują one zwiększoną awaryjność.
dr inż. Florian Grzegorz Piechurski
Instytut Inżynierii Wody i Ścieków
Wydział Inżynierii Środowiska i Energetyki Politechnika Śląska, Gliwice
Śląska OIIB
Zdjęcia autora
Literatura
- PN-EN 752-1:2000 Zewnętrzne systemy kanalizacyjne. Pojęcia ogólne i definicje.
- F. Piechurski, Próba energetycznej oceny pracy pompowni ścieków z wstępną separacją ciał stałych, „INSTAL1 2 (381)/2017.
- Materiały informacyjne firmy INSBUD 2, Rybnik.
- http://www.pwpkatowice.pl
- http://www.promer.com.pl
- http:/www. hydro-vacum.pl
- http://www.ksb.pl




