Poprawna ochrona dużego placu budowy jest trudna i skomplikowana.
Place budowy w Polsce są chronione w różnym stopniu – niektóre dobrze, niektóre źle, ale ogólnie rzecz biorąc, im mniejsza budowa, tym jej ochrona gorsza. Zdarzają się jednak budowy duże lub nawet bardzo duże, których ochrona jest niedostateczna. Należy podkreślić, że problem ochrony placów budowy nie jest taki prosty, jak mogłoby się to wydawać zwykłemu obserwatorowi. Ochrona ta zależy od wielu czynników:
– wielkość, skomplikowanie i ważność wznoszonej inwestycji;
– wielkość i kształt placu budowy, będącego do dyspozycji kierownika budowy, odliczając powierzchnie projektowanej zabudowy inwestycji;
– położenie budowy w centrum miasta, na jego obrzeżach lub w terenie niezabudowanym;
– dostępność budowy do sieci komunikacyjnej: drogowej lub kolejowej w kraju.

Fot. 1 Tablica ogłoszeń
Jakie elementy stanowią ochronę placu budowy
Każda nawet najmniejsza budowa powinna posiadać porządne ogrodzenie z bramą i furtką dla pieszych.
Na prawie każdej budowie powinna być umieszczona w widocznym miejscu tablica informacyjna i ogłoszenie zawierające dane dotyczące bhp. Obowiązek ten nie dotyczy budowy obiektów służących obronności i bezpieczeństwu państwa oraz obiektów liniowych, a także obiektów, wobec których nie jest wymagane pozwolenie na budowę.
Zgodnie z Prawem budowlanym ogłoszenie nie jest wymagane w stosunku do budowy lub rozbiórki, na której przewiduje się prowadzenie robót budowlanych trwających nie dłużej niż 30 dni roboczych i jednocześnie przy zatrudnieniu najwyżej 20 pracowników albo w stosunku do których planowany jest zakres robót nieprzekraczający 500 osobodni.
Na drugim biegunie liczby i rodzajów zabezpieczeń powinny się znajdować budowy o znaczeniu strategicznym: obiekty wojskowe szczególnego znaczenia, elektrownie atomowe i konwencjonalne, obiekty o krajowym znaczeniu, jak dworce lotnicze, duże dworce kolejowe, wielkie stadiony, obiekty kultury, hale wystawowe itp.

Fot. 2 Ogrodzenie siatkowe nieprzeziewne
Obiekty te muszą posiadać najwyższy stopień ochrony, czyli:
– Tablice informacyjne i ogłoszenia przy każdej bramie wjazdowej.
– Tablicę ogłoszeń, na której będzie podany regulamin budowy, instrukcje postępowania w przypadku pożaru, wypadku na budowie lub klęski żywiołowej. Na tablicy powinien również się znajdować schemat budowy.
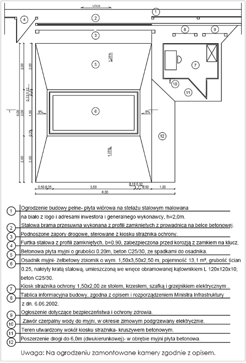
– Ogrodzenie placu budowy trwałe, estetyczne, zmontowane na szkielecie stalowym porządnie zakotwionym w gruncie z wypełnieniem nieprzeziernym zamocowanym do szkieletu w sposób trudny do rozmontowania. Ogrodzenie musi być wykonane po prostych liniach, ustawione w sposób stabilny, aby mogło się oprzeć silnym podmuchom wiatru. Zwykle umieszcza się na nim logo inwestora i generalnego wykonawcy oraz różne tablice informacyjne, ostrzegające i zakazujące, np. palenia na terenie budowy. Wysokość ogrodzenia nie powinna być mniejsza niż 2,0 m.
-Wjazd i wyjazd z budowy z odpowiednimi bramami, zamykanymi w okresach przerwy w pracy budowy, z podnoszonymi zaporami drogowymi sterowanymi z pomieszczenia strażnika budowy. Na budowie może być ruch dwukierunkowy lub jednokierunkowy,
– Furtki dla pieszych przy każdym wjeździe i wyjeździe, jeśli prowadzą do nich chodniki lub ścieżki dla pieszych z terenu spoza budowy.
– Myjnię samochodową przy każdym wyjeździe z budowy na ulicę lub drogę publiczną, zaopatrzoną w instalację wodną, oraz żelbetowy zbiornik błota i wody, zakryty stalową kratą.
– W dogodnych miejscach rozstawione kontenery na śmiecie i odpady budowlane, w miarę ich napełnienia wywożone (zabrania się rozrzucania odpadów po terenie budowy).
– Oświetlenie całego terenu budowy, umieszczone na dźwigach stacjonarnych, zakończonych fragmentach budowy oraz wzdłuż całego ogrodzenia placu budowy w takich odstępach, aby zasięg świateł się zazębiał (nie może być ciemnych fragmentów ogrodzenia ani placu budowy). Oświetlenie na wierzchołkach dźwigów jest konieczne z dwóch względów: dobrze oświetla plac budowy w czasie robót wieczornych lub nocnych, a także jest niezbędne w pobliżu lotnisk, szczególnie w pasach startów i lądowań samolotów. Żaden rodzaj oświetlenia placu budowy nie może powodować olśnienia pracowników.
– Kamery telewizji przemysłowej rejestrujące wzdłuż całego ogrodzenia o zasięgu zazębiającym się; nie może być miejsc nieobjętych ich polem widzenia. Kamery należy rozmieścić również w newralgicznych punktach budowy. Wszystkie kamery powinny być zainstalowane na wysokości niedostępnej dla człowieka, aby uniemożliwić ich niszczenie.
– Wyznaczone ścieżki dla pieszych.
– Drogi dla pojazdów dowożących materiały do budowy mogą być dwukierunkowe lub jednokierunkowe, należycie zaprojektowane i wykonane, dochodzące do miejsc składowania materiałów i elementów konstrukcji oraz magazynów budowy.
– Utwardzone miejsca na składowanie materiałów masowych, punkty ciesielskie z zadaszoną piłą tarczową i instrukcją jej obsługi oraz stanowiska zbrojarzy ze stołami i składowiskami elementów zbrojenia, ułożonymi średnicami i długościami na drewnianych podkładach. W żadnym przypadku pręty zbrojenia nie mogą się stykać z gruntem i wodą. Punkty ciesielskie i stanowiska zbrojarzy powinny być utwardzone betonem, aby chronić materiały przed niszczeniem, a ludziom umożliwić właściwe warunki pracy.

Rys. 1 Wjazd na budowę i wyjazd na drodze dwukierunkowej
Przy każdej większej budowie powinien być zatrudniony pracownik ochrony, a przy większych budowach kilku, których zadaniem jest całodobowe czuwanie nad bezpieczeństwem ludzi, mieniem budowy, maszynami i sprzętem. Obowiązkiem ochroniarzy jest kontrola uprawnień osób do przebywania na terenie budowy (identyfikatorów, przepustek), kontrola ruchu towarowego (zgodność materiałów i sprzętu z dokumentacją). W nocy ochroniarze pełnią służbę przy bramach i patrolują budowę (obchody). Ochrona ta musi mieć kontakt z policją, pogotowiem ratunkowym oraz strażą pożarną. W ochronie budowy powinni pracować ludzie w pełni sprawni fizycznie i psychicznie.
Ochronę placu budowy ułatwiają systemy alarmowania pożarowego, kontroli dostępu, sygnalizacja alarmu włamania i napadu.
W zakres ochrony placu budowy wchodzi również jej zaplecze materiałowo-socjalno-techniczne.
Do zaplecza zalicza się: magazyny materiałów wykończeniowych, elektrycznych, teletechnicznych, sanitarnych, magazyny różnych narzędzi i sprzętu pomiarowego (zabezpieczają one drogie materiały i sprzęt budowy przed zniszczeniem i kradzieżą), biura inwestora, generalnego wykonawcy i podwykonawców, szatnie załogi brudne i czyste, umywalnie, jadalnie, pomieszczenia sanitarne. Obiekty te są wykonywane z typowych zestawów kontenerowych, montowanych w zespoły zależnie od liczby zatrudnionych pracowników oraz wielkości budowy. Należy podkreślić, że wszystkie pomieszczenia biurowe i socjalne muszą być codziennie sprzątane, utrzymywane w porządku i czystości. Niedopuszczalne są obskurne, brudne budy, do których wchodzi się z przykrością, a niestety zdarzają się takie dość często.
Niezbędnym elementem w ochronie placu budowy i wznoszonej inwestycji są przenośne, typowe punkty sanitarne w ilości dostosowanej do wielkości budowy i liczby zatrudnionych pracowników. Jest to absolutnie konieczne, aby różne zakątki placu budowy oraz wznoszone pomieszczenia inwestycji nie zamieniały się w śmierdzące kloaki. Niezbędne są również parkingi – dla ciężkich maszyn, pojazdów i sprzętu budowy (gdzie będą ustawiane kołowe jednostki sprzętowe podczas przerw w pracy) oraz dla pojazdów osobowych pracowników.
W biurze kierownika budowy powinna się znajdować apteczka pierwszej pomocy.
Pracownicy zajmujący się nadzorem bhp powinni dbać o ład i porządek na placu budowy, co wiąże się z ogólnymi zasadami ochrony budowy oraz zdecydowanie wpływa na wydajność pracy.
W wyposażeniu budowy powinien się znajdować alkomat do sporadycznych kontroli trzeźwości pracowników. Kontrole powinny być wykonywane szczególnie w poniedziałki, dni poświąteczne, po dłuższych przerwach w pracy budowy oraz po najbardziej popularnych imieninach. Konieczne jest sprawdzanie, czy pracownicy nie wnoszą na budowę jakichkolwiek alkoholi.
Należy zdecydowanie podkreślić, że plac budowy łącznie z procesem budowlanym jest niezwykle skomplikowanym organizmem, zarządzanie nim wymaga dużej wiedzy ogólnej z inżynierii budowlanej, organizacji pracy, szczególnych predyspozycji osobowych, umiejętności pracy w dużych zespołach ludzkich, pewnych zdolności psychologicznych, przede wszystkim zaś poczucia realnej a niepozorowanej odpowiedzialności oraz wysokiego poziomu etyki zawodowej. Podany został minimalny i maksymalny poziom ochrony placu budowy, jednak w praktyce występuje wiele przypadków pośrednich, a każdy z nich wymaga indywidualnego rozpatrzenia i dobrania najlepszego i najskuteczniejszego poziomu ochrony danego placu budowy.

Rys. 2 Elementy placu budowy: a) myjnia – przekrój, b) droga tymczasowa – przekrój, c) ścieżka dla pieszych – przekrój
Uwagi do niektórych elementów ochrony placu budowy
Tablica informacyjna i ogłoszenie
Tablica informacyjna i ogłoszenie powinny być wykonywane zgodnie z rozporządzeniem Ministra Infrastruktury z dnia 26 czerwca 2002 r. [1]. Na niektórych budowach tablice informacyjne i ogłoszenia są nie tylko niezgodne z wymienionym rozporządzeniem, lecz wykonywane w sposób niechlujny, na kawałkach płyty pilśniowej, z ręcznym nieczytelnym opisem, którego treść jest przypadkowa i niepełna. Często na tablicach brak jest adresów i numerów telefonów instytucji, a szczególnie osób wykonujących samodzielne funkcje techniczne na budowie. Może wynika to z niewłaściwego zarządzania budową oraz obawy przed krytyką. Poprawna tablica informacyjna powinna mieć wymiary 2,00 x 0,90 m; ma być wykonana na sztywnej płycie koloru żółtego, z opisem drukowanym, trwałym, przy czym cyfry i litery mają być koloru czarnego o wysokości min. 40 mm. Należy ją ustawiać na dwóch słupach, w miejscu widocznym przy głównych wjazdach na budowę. Tablica informacyjna powinna zawierać następujące dane:
– określenie rodzaju robót oraz ich adres;
– numer pozwolenia na budowę oraz nazwę, adres i numer telefonu organu nadzoru budowlanego;
– nazwę, adres i numer telefonu inwestora;
– nazwę, adres i numer telefonu generalnego wykonawcy;
– imiona, nazwiska, adresy i numery telefonów kierownika budowy, inspektora nadzoru i projektanta, z którym inwestor zawarł umowę;
– numery telefonów alarmowych policji, straży pożarnej i pogotowia ratunkowego;
– numer telefonu okręgowego inspektora pracy.
W tym samym rozporządzeniu są informacje na temat ogłoszenia bhp – ma ono być podane na sztywnej płycie koloru żółtego o wymiarach 0,90 x 0,90 m, opis drukowany w kolorze czarnym, o wysokości liter i cyfr min. 40 mm. Na tablicy tej należy podać termin rozpoczęcia i zakończenia robót, maksymalną liczbę pracowników w różnych okresach pracy budowy oraz dane o planie BiOZ. Na niektórych budowach nie ma takiego ogłoszenia lub jest ono wykonywane nie- porządnie, z licznymi brakami.
Tablica ogłoszeń ma być wykonana z twardej płyty zabezpieczonej taflą szkła, aby umieszczone tam informacje nie uległy zniszczeniu. Powinna być przykryta daszkiem i zamocowana w gruncie na dwóch stabilnych słupach. Informacje na niej podane mają być zamieszczone na wysokości 1,0-2,20 m, aby można było łatwo je przeczytać. Jest to ważny element placu budowy, gdyż zawiera konieczne instrukcje bezpieczeństwa. Ogrodzenie placu budowy, bramy i furtki są wykonywane z różnych materiałów i w różnej klasie. Najczęściej są stosowane typowe systemy złożone ze stalowych słupków osadzonych w zwykłych płytach fundamentowych, z rozbieralnymi przęsłami stalowymi z prętów lub siatki. Najgorsze są przęsła siatkowe, gdyż nie stanowią poważnej przeszkody dla intruza, nie mówiąc już o zagrożeniu przez terrorystów. Na szczególnie prestiżowych budowach ogrodzenia są wykonywane wg indywidualnego projektu. Bramy i furtki powinny być wykonywane z cienkościennych profili zamkniętych, zabezpieczonych przed korozją. Najskuteczniejsze są bramy rozsuwane po poziomych szynach zakotwionych w betonowej ławie; furtki powinny być otwierane do wewnątrz placu budowy. Jeśli ogrodzenie znajduje się tuż przy chodniku miejskim, konieczne jest wykonanie odpowiednio trwałego zadaszenia nad chodnikiem z dużym spadkiem w stronę budowy. Tymczasowe ścieżki dla pieszych i drogi wewnątrz placu budowy bywają nagminnie lekceważone przez generalnych wykonawców, a także inwestorów i ich inspektorów nadzoru. Szczególnie ważne są na gruntach spoistych, słabo nasiąkliwych, gdy podczas opadów tworzą się na placu budowy ogromne rozlewiska wody i błota, uniemożliwiające poprawny ruch pojazdów i przejście pieszych. Przeważnie ścieżki nie są w ogóle projektowane i wykonywane, natomiast drogi realizowane byle jak, nic więc dziwnego, że po pewnym czasie zapadają się poniżej przyległego terenu, stając się ściekami wody i błota z przyległych powierzchni. Taki stan placu budowy paraliżuje proces produkcyjny inwestycji, utrudnia dostawy materiałów, a nawet psuje humor pracownikom. Absolutnie konieczne jest wykonanie projektu dróg i ścieżek na placu budowy. Z tras przewidzianych na drogi musi być usunięty humus, dogęszczony grunt rodzimy, następnie wykonana podbudowa nośna z tłucznia kamiennego lub bardzo taniego kruszywa z rozebranych konstrukcji betonowych o grubości co najmniej 0,30 m. Konieczne jest zagęszczenie jej walcem drogowym, następnie wykonanie odsączającej podsypki piaskowej o grubości min. 0,10 m i ułożenie żelbetowych płyt drogowych. Szerokość drogi jednokierunkowej powinna wynosić 3,5 m, a dwukierunkowej 6 m. Poziom drogi ma się znajdować min. 0,2 m powyżej otaczającego ją terenu i posiadać spadki na zewnątrz, aby woda mogła z niej swobodnie spływać. Wszelkie zniszczenia drogi w czasie eksploatacji należy naprawiać.
Ścieżki dla pieszych trzeba wykonać po uprzednim usunięciu humusu, dogęszczeniu podłoża gruntowego i ułożeniu nawierzchni z kruszywa betonowego z odpowiednim zagęszczeniem. Poziom ścieżek powinien również się znajdować min. 0,2 m powyżej otaczającego terenu, a ich szerokość min. 1,2 m. Parkingi dla sprzętu budowlanego oraz samochodów osobowych należy organizować na zamkniętym placu budowy. Z powierzchni przeznaczonych na parkingi musi być usunięty humus, po czym teren ten ma być utwardzony warstwą kruszywa betonowego zagęszczonego walcem drogowym. Poziom nawierzchni parkingowych ma się znajdować nieco powyżej przyległego terenu i nie może na niej stać woda.
Podsumowanie
Ochrona placu budowy jest bardzo ważnym problemem w procesie realizacji inwestycji. Szczególnie na dużych i bardzo dużych budowach poprawna ochrona jest problemem trudnym i skomplikowanym. Jej zadaniem jest zabezpieczenie mienia budowy, stworzenie dobrych warunków pracy załodze oraz ochrona jej zdrowia i życia. Wiele zależy od poczucia odpowiedzialności i etyki kierowników budów i dyrektorów wielkich inwestycji.
Obecnie na rynku działa wiele firm ochroniarskich świadczących usługi w zakresie ochrony placów budów. Są to często usługi kompleksowe i dopasowane do indywidualnych potrzeb danej budowy.
mgr inż. Arkadiusz Maciejewski
Literatura
- Rozporządzenie Ministra Infrastruktury z dnia 26 czerwca 2002 r. w sprawie dziennika budowy, montażu i rozbiórki, tablicy informacyjnej oraz ogłoszenia, zawierającego dane dotyczące bezpieczeństwa i ochrony zdrowia.
- Rozporządzenie Ministra Infrastruktury z dnia 6 lutego 2003 r. w sprawie bezpieczeństwa i higieny pracy podczas wykonywania robót budowlanych.
- Ustawa z dnia 7 lipca 1994 r. – Prawo budowlane z późniejszymi zmianami.




