Nie zawsze zawilgocenie wskazuje na przecieki, przyczyną może być kondensacja powierzchniowa czy międzywarstwowa.
Praktyka pokazuje, że większość wykonawców i inwestorów za przecieki na tarasach lub balkonach wini złą jakość zastosowanych materiałów. Spotyka się opinie, że materiały firm X i Y są do niczego, bo już na wiosnę pojawiły się przecieki, że płytki na tarasie absolutnie się nie sprawdzają, bo maksymalnie po dwóch latach i tak odpadną lub się uszkodzą. Inni z kolei twierdzą, że ta sama firma X produkuje doskonałe materiały, bo uprzednia trzykrotna naprawa materiałami firm A, B i C była nieskuteczna, dopiero ta ostatnia zdała egzamin. Oczywiście takie opinie, niepoparte rzeczywistą analizą przyczyn uszkodzenia oraz parametrów zastosowanych materiałów, trudno uznać za miarodajne. Pytanie, które zawsze trzeba postawić w takiej sytuacji, musi dotyczyć przyczyn. Nie zawsze zawilgocenie wskazuje na przecieki, przyczyną może być kondensacja powierzchniowa czy międzywarstwowa. Ustalenie przyczyn w tej sytuacji jest dużo trudniejsze. Zdarza się, że w takim przypadku zaleca się kompleksową naprawę połaci (ponowne wykonanie wszystkich warstw), a efektów nie ma, gdyż przyczyna tkwi gdzie indziej. Szczególnie trudne do diagnostyki są tzw. pozorne przecieki. Zdjęcia 1-3 pokazują ościeża okien i drzwi balkonowych w bloku mieszkalnym. Cechą charakterystyczną było to, że pokazane problemy występowały tylko dla pomieszczeń balkonowych. Przyjęte do realizacji pierwotne rozwiązanie konstrukcyjno-materiałowe balkonu wyglądało następująco. Od góry zaprojektowano warstwę użytkową – płytki na kleju, wylewkę betonową gr. 4 cm, termoizolację – styropian FS 20 gr 5 cm, hydroizolację z folii EPDM, płytę konstrukcyjną ze spadkiem i termoizolację z wyprawą elewacyjną od spodu – styropian gr. 5 cm. Balustrady zamocowano w sposób przebijający warstwę użytkową od góry. Warstwą użytkową były płytki ceramiczne. Oględziny wykazały, że w obszarze balkonu występują zawilgocenia, ujawniające się przede wszystkim bezpośrednio pod płytą balkonową (fot. 1-3), a także w strefie wewnętrznej, przy progu drzwiowym (fot. 4). Podczas oględzin stwierdzono następujący układ warstw: izolacja bitumiczna – masa KMB, termoizolacja – styropian gr. 5 cm, wylewka gr. ok. 5 cm i warstwa użytkowa – płytki. Grubość warstw konstrukcji na płycie przy ścianie wynosiła 11 cm.

Fot. 1-3. Ościeża okien i drzwi balkonowych w bloku mieszkalnym (pod balkonami) z widocznymi zawilgoceniami i skroplinami

Fot. 4. Zawilgocenie ściany przy balkonie

Fot. 5-8. Nieciągłość termoizolacji będąca główną przyczyną zawilgocenia, fot. 5 i 6 w ociepleniu na płycie, fot. 7 i 8 w ociepleniu od spodu; opis w tekście
Czytaj także: Projektowanie tarasów
Diagnozowany balkon nie był naprawiany, natomiast wcześniej naprawiono inne balkony – skuto płytki, wykonano izolację podpłytkową i wywinięto ją na przyległą ścianę na warstwę tynku strukturalnego (wykonano cokolik z płytek, styk połać balkonu-ściana uszczelniono taśmą). Podczas naprawy w żaden sposób nie ingerowano w docieplenie. Rezultat naprawy był żaden.
Odkrywka na połaci balkonu przy ścianie jednoznacznie pokazała błędne wykonanie termoizolacji w strefie styku płyta balkonowa-ściana: termoizolacja pionowa – styropian gr. 15 cm kończył się w środku grubości warstwy dociskowej, co spowodowało na całej długości płyty balkonowej powstanie pustki o szerokości 15 cm i wysokości ok. 9 cm. Przestrzeń tę częściowo wypełniono luźno ułożonymi paskami styropianu (fot. 5 i 6). Stwierdzono obecność wilgoci w warstwie termoizolacji, zawilgocenie jastrychu na poziomie 12% oraz obecność wilgoci na powierzchni izolacji bitumicznej.
Wobec powyższego zdecydowano się na wykonanie odkrywki pod płytą balkonu znajdującego się powyżej – przy górnym ościeżu okiennym (fot. 7 i 8). Także tu zauważono obecność pustki o wysokości 3 cm i szerokości 15 cm, a więc wymiarach odpowiadających grubościom termoizolacji ściany i płyty od spodu.
Wykonane odkrywki wykazują także poważne błędy wykonawcze. Do podstawowych i decydujących o problemach z wilgocią zaliczyć należy zły układ warstw (brak izolacji podpłytkowej) oraz złe rozwiązanie styku płyta-ściana.
Zastosowanie jako warstwy użytkowej płytek ceramicznych na kleju ułożonych na wylewce betonowej w zasadzie wymusza wykonanie izolacji podpłytkowej (teoretycznie możliwe jest ułożenie płytek na jastrychu wodoprzepuszczalnym, jednak w praktyce takie rozwiązanie stosowane jest niezwykle rzadko). W omawianym przykładzie izolacja ułożona jest pod styropianem, na płycie konstrukcyjnej. Jest to pomieszanie układu z uszczelnieniem zespolonym z tzw. układem odwróconym.

Rys. 1. Pustka powietrzna na styku ocieplenie ściany-ocieplenie płyty (górnej i dolnej powierzchni) oraz skroplin na ościeżach (fot. 1-3). Potwierdza to numeryczna analiza cieplno-wilgotnościowa tego detalu – rozkład izoterm w przekroju wykazuje ujemną temperaturę powietrza w pustce, co skutkuje wspomnianą kondensacją wilgoci. W połączeniu z błędnym uszczelnieniem dylatacji brzegowej spowodowało to także pojawienie się wilgoci w ścianie od strony pomieszczenia (fot. 4)
Przeczytaj także: Poprawne rozwiązania hydroizolacji tarasów i balkonów – cz. I
Drugim podstawowym błędem jest nieuwzględnienie faktu, że jeżeli płyta balkonowa jest docieplana z obu stron (od spodu i termoizolacja pod jastrychem), to układ warstw powinien odpowiadać układowi takiemu jak dla tarasu, ze wszystkimi tego konsekwencjami. Szczególną uwagę należy zwrócić na błędne uszczelnienie styku płyta-ściana, zwłaszcza w połączeniu z pustką powietrzną wynikłą z wyjątkowego niedbalstwa na etapie wykonania prac.
To powoduje, że opisana próba naprawy innych balkonów nie mogła być skuteczna.
Z dwóch powodów: błędnego wykonania styku ściana-płyta (taśmę przyklejono na tynk) oraz pustki powietrznej. Numeryczna analiza – rys. 1 – pokazuje znaczny spadek temperatury w obszarach pustki powietrznej, co skutkuje kondensacją wilgoci i wnikaniem jej w warstwy systemu dociepleń i w przegrodę, czego dalszą konsekwencją jest jej przemarzanie (proszę zwrócić uwagę, że obliczenia wykonano dla zewnętrznej temperatury -10oC, gdyż niższa nie występowała w ciągu ostatnich pięciu lat). Usunięcie usterek jest możliwe jedynie przez kompleksową naprawę połaci połączoną z naprawą wad termoizolacji. Przeanalizujmy szerzej zagadnienia związane z płytą balkonową i to tylko dla kilku typowych sytuacji. Pierwsza, wydawałoby się najprostsza, balkon w układzie wspornikowym, ściana dwuwarstwowa ocieplona systemem ETICS. Taki wariant można znaleźć w bardzo wielu budynkach zarówno mieszkalnych, jak i użyteczności publicznej. Co się dzieje dla wspornikowej płyty żelbetowej o gr. 12 cm z uszczelnieniem podpłytkowym i okładziną ceramiczną, zamocowaną w ścianie gr. 25 cm (wieniec o wysokości 25 cm) z pustaków z ceramiki porotyzowanej, ocieplonej systemem ETICS (15 cm styropianu). Jakie mogą być skutki pozostawienia nieocieplonej płyty? Załóżmy na zewnątrz temperaturę -20oC, a wewnątrz +20oC. Rysunek 2 pokazuje rozkład izoterm w obszarze wieńca, ściany i płyty. Widać wyraźnie, jak obecność tak zamocowanej płyty wpływa na rozkład temperatury w przekroju ściany. Temperatura (powierzchni tynku) na styku ściany ze stropem wynosi 12,9oC, a w miejscu styku wieńca ze ścianą (10 cm niżej) tylko 13,6oC, co w porównaniu z temperaturą powierzchni ściany oznacza spadek o kilkadziesiąt procent (patrz tab. 1). Także w przyległej strefie stropu (w odległości 8 cm od krawędzi ściany) temperatura na powierzchni tynku wynosi 15,7oC. To tłumaczy pojawiające się często w tym obszarze kolonie grzybów pleśniowych. Grzyby pleśniowe pojawiają się w miejscu, gdzie dochodzi do powierzchniowej kondensacji wilgoci, a sprzyja temu niska temperatura podłoża.
Tab. 1. Temperatury wewnętrznej powierzchni ściany i stropu w strefie wieńca dla różnych wariantów wykonstruowania płyty balkonowej (tabelę rozpatrywać należy łącznie z opisem rys. 2-4)


Rys. 2. Rozkład izoterm w obszarze wieńca, ściany i żelbetowej płyty wspornikowej grubości 12 cm z uszczelnieniem podpłytkowym i okładziną ceramiczną, zamocowaną w ścianie gr. 25 cm (wieniec o wys. 25 cm) ocieplonej systemem ETICS (15 cm styropianu) przy temperaturze -20°C na zewnątrz i +20°C wewnątrz. Płyta balkonowa od spodu otynkowana tynkiem cementowo-wapiennym, wykończona płytkami. Ściana z pustaków z ceramiki porotyzowanej (A = 0,238 W/(m*K)) otynkowana od wewnątrz tynkiem cementowo-wapiennym, wieniec żelbetowy 25×25 cm, strop żelbetowy gr. 15 cm, od spodu otynkowany tynkiem cementowo-wapiennym, na stropie termoizolacja z płyt styropianowych gr. 5 cm oraz jastrych cementowy gr. 4 cm: a – geometria układu, b – izotermy (rozkład temperatur) w warstwach konstrukcji, c – przyporządkowanie temperatury do koloru linii. Temperaturę w narożach oraz w strefie przy stropie (punkty zaznaczone na rys. 5) podano w tab. 1

Rys. 3. Rozkład izoterm w obszarze wieńca, ściany i wspornikowej płyty balkonu ocieplonej obustronnie. Płyta żelbetowa gr. 12 cm, od spodu ocieplona płytami styropianowymi gr. 3 cm, od góry termoizolacja płytami gr. 5 cm, jastrych cementowy gr. 5 cm, wykończony płytkami. Ściana z pustaków z ceramiki porotyzowanej (A = 0,238 W/(m*K)) otynkowana od wewnątrz tynkiem cementowo- -wapiennym, od zewnątrz termoizolacja ze styropianu gr. 15 cm, wieniec żelbetowy 25×25 cm, strop żelbetowy gr. 15 cm, od spodu otynkowany tynkiem cementowo-wapiennym, na stropie termoizolacja z płyt styropianowych gr. 5 cm oraz jastrych cementowy gr. 4 cm. Temperatura na zewnątrz -20°C, temperatura wewnątrz +20°C: a – geometria układu, b – izotermy (rozkład temperatur) w warstwach konstrukcji, c – przyporządkowanie temperatury do koloru linii. Temperaturę w narożach oraz w strefie przy stropie (punkty zaznaczone na rys. 5) podano w tab. 1
Polecamy też: Systemy ETICS w warunkach zimowych. Zagrożenia aplikacyjne i specjalne rozwiązania surowcowe

Rys. 4. Rozkład izoterm w obszarze wieńca, ściany i płyty balkonu opartej na osobnej konstrukcji nośnej (dostawianej do budynku). Płyta balkonowa żelbetowa gr. 12 cm, od spodu otynkowana tynkiem cementowo-wapiennym, wykończona płytkami. Ściana z pustaków z ceramiki poroty- zowanej (A = 0,238 W/(m • K)), otynkowana od wewnątrz tynkiem cementowo-wapiennym, od zewnątrz termoizolacja ze styropianu gr. 15 cm, wieniec żelbetowy 25x 25 cm, strop żelbetowy gr. 15 cm, od spodu otynkowany tynkiem cementowo-wapiennym, na stropie termoizolacja z płyt styropianowych gr. 5 cm oraz jastrych cementowy gr. 4 cm. Temperatura na zewnątrz -20°C, temperatura wewnątrz +20°C: a – geometria układu, b – izotermy (rozkład temperatur) w warstwach konstrukcji, c – przyporządkowanie temperatury do koloru linii. Temperaturę w narożach oraz w strefie przy stropie (punkty zaznaczone na rys. 5) podano w tab. 1
Sytuację pokazaną na fot. 9 próbuje się ratować, docieplając płytę balkonową nie tylko od góry, ale także od spodu, niestety bardzo często z miernym rezultatem. Zapomina się o tym, że w takiej sytuacji układ warstw musi odpowiadać układowi tarasowemu, na co zwykle brakuje wysokości. Niezależnie od tego, z tego samego powodu, próbuje się pocienić wymaganą grubość warstw. Ponadto taka sytuacja wymaga starannego przemyślenia szczegółów. Pytanie, na które należy odpowiedzieć, brzmi, co daje takie docieplenie płyty z obu stron i jakie niesie niebezpieczeństwo. Zacznijmy od analizy rozkładu temperatur. Z rys. 3 wynika, że sytuacja jest dużo lepsza niż dla sytuacji pokazanej rys. 2 (tab. 1). Temperatura na styku ściany i stropu wynosi 14,9oC, co oznacza, że kondensacja pojawi się przy względnej wilgotności powietrza wynoszącej 73% (dla temperatury +20oC). A zatem jest dużo lepiej, ale jeżeli pomieszczeniem tym będzie kuchnia, to taka wilgotność powietrza może być niestety standardem. Zdecydowanie najlepszą z punktu widzenia ochrony cieplnej sytuację pokazuje rys. 4. Płyta balkonu mocowana jest za pomocą łączników izotermicznych lub oparta na dostawianej konstrukcji.

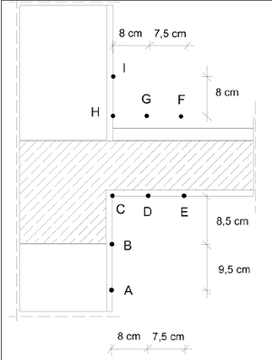
Rys. 5. Umiejscowienie punktów zdefiniowanych w tab. 1

Fot. 9. Płyta balkonowa najczęściej wykonywana jest jako wspornikowa bez łącznika izotermicznego, co bardzo utrudnia poprawne wykonanie ocieplenia
Czytaj też: Odprowadzanie wody z tarasu i balkonu – cz. I
Wpływ tak wykonstruowanych płyt balkonowych na mostek termiczny jest tu minimalny (żeby nie powiedzieć pomijalny). Przytoczone przykłady oraz konkretne wartości liczbowe podano po to, aby pokazać inwestorowi, że nie należy lekceważyć problemu. Skutkiem mostka termicznego w tej strefie są najczęściej kolonie grzybów pleśniowych. Warto popatrzeć na rys. 5 oraz tab. 1. Pokazuje ona temperaturę na powierzchni ściany i stropu w strefie wieńca. Różnica jest dość znaczna – dla punktu C ponad 5oC, od 12,9 do 18,3oC.
Dla temperatury 20oC i wilgotności względnej powietrza 50% punkt rosy wynosi 9,3oC, ale dla wilgotności względnej powietrza 70% już 14,4oC. To jest odpowiedź, dlaczego rozwój grzybów pleśniowych najwcześniej uwidacznia się w obszarze występowania przynajmniej dwóch liniowych mostków termicznych (np. styk ściana-strop) i dlaczego tak istotne jest wyeliminowanie mostków termicznych – przy zakręconych (lub przykręconych) kaloryferach i szczelnych oknach, przy braku skutecznej wentylacji rozwój grzybów pleśniowych jest kwestią czasu.
mgr inż. Maciej Rokiel
Literatura
- PN-EN ISO 6946:2017-10 Komponenty budowlane i elementy budynku – Opór cieplny i współczynnik przenikania ciepła – Metoda obliczania.
- Rozporządzenie Ministra Infrastruktury z dnia 12 kwietnia 2002 r. w sprawie warunków technicznych, jakim powinny odpowiadać budynki i ich usytuowanie – Dz.U. z 2002 r. Nr 75, poz. 690 z późn. zm. (tekst jednolity obwieszczenie Ministra Infrastruktury i Rozwoju z dnia 17 lipca 2015 r. w sprawie ogłoszenia jednolitego tekstu rozporządzenia Ministra Infrastruktury w sprawie warunków technicznych, jakim powinny odpowiadać budynki i ich usytuowanie, Dz.U. z 2015 r. poz. 1422).
- PN-EN ISO 13788:2013-05 Cieplno-wilgotnościowe właściwości komponentów budowlanych i elementów budynku – Temperatura powierzchni wewnętrznej konieczna do uniknięcia krytycznej wilgotności powierzchni i kondensacja międzywarstwowa – Metody obliczania.
- M. Rokiel, ABC balkonów i tarasów. Poradnik eksperta, Grupa Medium, 2015.
- M. Rokiel, Tarasy i balkony. Projektowanie i warunki techniczne wykonania i odbioru robót, Dom Wydawniczy Medium, 2012.
- W. Płoński, J. Pogorzelski, Fizyka budowli, Arkady, Warszawa 1979.
- J. Karyś (red.), Ochrona przed wilgocią i korozją biologiczną w budownictwie, Grupa Medium, 2014.
- M. Rokiel, Hydroizolacje w budownictwie. Poradnik. Projektowanie. Wykonawstwo, wyd. III, Grupa Medium, 2019.




